Hobbs Wall, Farmborough, Bath

For Sale £550,000

4 2 1
This well presented four bedroom detached home is located in the popular village of Farmborough. The property is set back from the road and offers ample off street parking to the front.

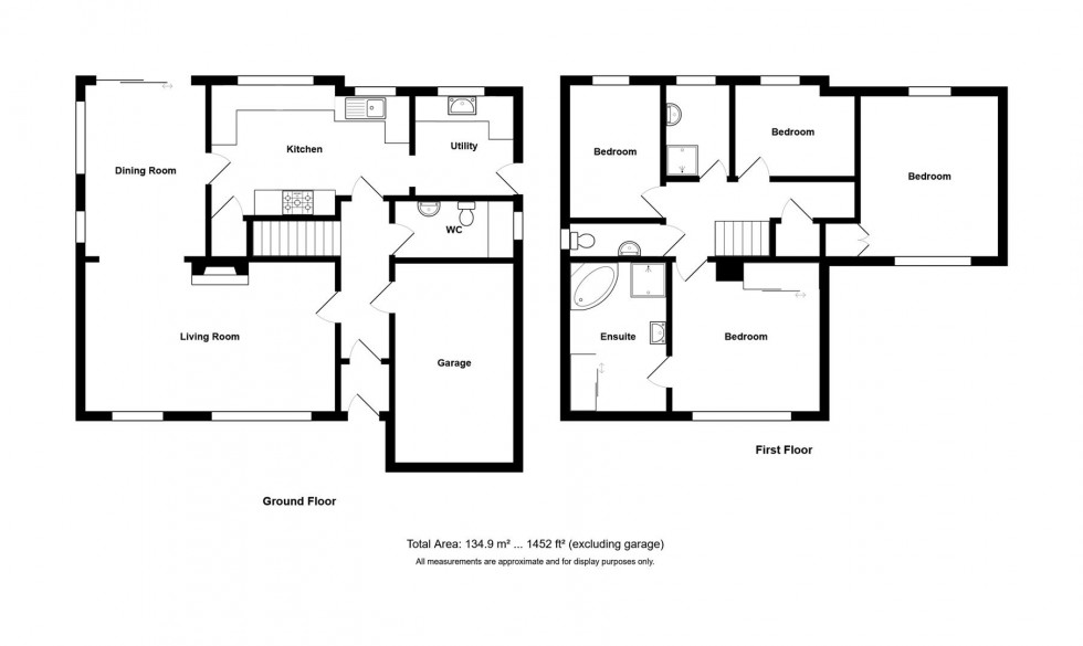
Internally, the property features an entrance porch leading into the hallway. To the left is a light, bright, and spacious sitting room which opens into a further reception room currently used as a dining room. To the rear of the property is a modern kitchen with a separate utility room to the side. The ground floor is completed by a cloakroom and internal access to the garage.

The first floor boasts four bedrooms. The master bedroom benefits from a generously sized en-suite bathroom and is complemented by a separate shower room and an additional cloakroom.

Externally, the garden wraps around the property, with a patio seating area to the rear and a formal garden to the side.

The property is situated within the thriving and popular village of Farmborough. The village lies approximately eight miles from the World Heritage City of Bath and is ideally positioned for access to the neighbouring city of Bristol via the A37. Farmborough offers a range of local amenities including a convenience store, garage, church, primary school, two public houses, and a village hall. There is also a bus service providing access to both Bath and Bristol, with a mainline rail service to London Paddington available from Bath Spa station.

ENCLOSED PORCH (1.65 x 1.19)

Entrance via a double glazed uPVC door with a matching double glazed frosted side window, allowing natural light while maintaining privacy. The space features a tiled floor and fitted lighting, creating a bright and practical entrance area.

HALLWAY

Featuring wood flooring and a radiator, the space also provides access to a staircase leading to the first floor.

CLOAKROOM (1.39 x 2.71)

Fitted with a double glazed frosted window to the side, this cloakroom comprises a white pedestal wash hand basin and low level WC. There are floor-standing cupboards with a shelf above, complemented by part tiled walls and a tiled floor. A radiator completes the space.

SITTING ROOM AREA (6.06 x 3.63)

A spacious family room featuring two double glazed windows to the front aspect, allowing plenty of natural light. The room is finished with wood flooring, two radiators, and wall lighting. A character stone fireplace with surround, hearth, and mantle forms a focal point, complete with an inset gas fire. Additional features include a built-in display cabinet, creating an ideal space for family living and entertaining.

DINING AREA (4.15 x 2.91)

A wonderfully light and bright space with views of the garden through two double glazed windows and a double glazed patio door. The room features wood flooring and a radiator, and flows seamlessly from the sitting room while still maintaining a defined area.

KITCHEN (4.80 x 3.17)

A light, bright, and spacious kitchen featuring modern white fronted wall and base units, including cupboards, drawers, and a tall larder unit, all topped with black laminate work surfaces and complemented by tiled splashbacks. There is space for a range cooker with a mosaic splashback and cooker hood, a built-under fridge, and provision for a dishwasher. Additional features include an under-stairs cupboard and a stainless steel sink with drainer and mixer tap. Two double glazed windows to the rear provide garden views and abundant natural light.

UTILITY (2.41 x 2.38)

A practical utility room with a double glazed window to the rear, featuring white fronted base units with laminate worktops and a tiled splashback. One wall offers shelving, and there is space for a washing machine. An inset Belfast sink with mixer tap is included, and a double glazed frosted window to the side provides access to the garden.

LANDING

The first floor landing features loft access and a metal balustrade. An over stairs storage cupboard houses a Worcester combi boiler, providing practical storage and utility.

BEDROOM (3.20 x 3.63)

A bright bedroom with a double glazed window to the front, a built in wardrobe, and a radiator

ENSUITE (3.65 x 2.33)

A very generous ensuite featuring a corner bath, vanity sink, and toilet, complemented by a built-in wardrobe. The room has a tiled floor, a radiator, and a double glazed frosted window.

SEPARATE CLOAKROOM (2.18 x 0.87)

A convenient cloakroom featuring a double glazed frosted window, wall-hung basin, and toilet, with a tiled floor and part-tiled walls.

BEDROOM (3.19 x 2.19)

A bright room with a double glazed window, wood flooring, and a radiator.

SHOWER ROOM (2.33 x 1.60)

A modern shower room with a double glazed frosted window, featuring a shower cubicle with a thermostatic shower and glass sliding door, a vanity basin with mixer tap, and tiled floor and walls.

BEDROOM (2.98 x 2.25)

A bright room with a rear-aspect double glazed window and a radiator.

BEDROOM

A spacious bedroom with double glazed windows to both front and rear aspects, a radiator, laminate flooring, and a built-in wardrobe.

GARDEN

The gardens wrap around the property, providing privacy and seclusion. To the rear, a charming patio area offers the perfect space for relaxing or alfresco dining, with flower borders and a greenhouse. The patio is enclosed by fencing, with a gate leading to the main formal garden, which features side and rear fencing, mature plants and shrubs, and is predominantly laid to lawn.

FRONT OF PROPERTY

“The front of the property is mainly laid to block paving, providing ample parking and access to the garage. Sympathetic planting adds a touch of greenery, and a gate offers access to the rear garden.”

TENURE

Freehold.

COUNCIL TAX

According to the Valuation Office Agency website, cti.voa.gov.uk the present Council Tax Band for the property is E. Please note that change of ownership is a ‘relevant transaction’ that can lead to the review of the existing council tax banding assessment.

ADDITIONAL INFORMATION

Local authority. bath and North East Somerset
Services. All mains services connected
Mobile phone signal EE O2 Three Vodafone. All good outdoor signal. Source Ofcom
Broadband. Ultrafast 1000 mps Source Ofcom
The property has leased solar panels for 25 years from 2011

  • Detached four bedroom home set back from the road
  • Ample off street parking
  • Spacious L shaped sitting dining room
  • Modern kitchen with separate utility room
  • Shower room and an ensuite
  • Lovely well presented home
  • Mature garden with a separate patio area
  • Bristol 10 miles Bath 9 miles Wells 12 miles
Floorplan for Hobbs Wall, Farmborough, Bath
EPC Graph for Hobbs Wall, Farmborough, Bath
Similar Properties

Get an instant online valuation

Find out how much your property is worth