Somerset Folly, Timsbury, Bath

For Sale £490,000

4 1 2
This very well situated semi-detached bungalow originally dates from 1970's. It has been subsequently extended to provide a study and conservatory with the addition of a first-floor bedroom by the conversion of part of the loft space. In the past few months, the property has been refurbished with a new kitchen and bathroom, redecoration, new carpets and the upgrading of the electrics. It provides excellent versatile accommodation equally suited to families as well as downsizers.

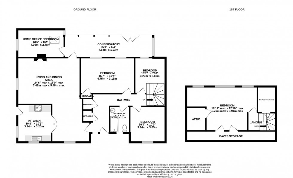
The accommodation is approached through a recessed open storm porch at the front, leading to an 'L' shaped hallway. There is a large open plan 'L' shaped living and dining room with a wood burning stove. Double doors lead to a newly fitted kitchen. Also accessed from the living area is a large conservatory off which is a study/potential 5th bedroom. The main bedrooms are accessed from the hallway. There are three on the ground floor with a newly fitted bathroom while on the upper floor is a large bedroom suitable for a variety of uses and with scope to create an en suite facility if required.

On the outside, the bungalow enjoys an enviable corner plot location at the junction of The Avenue and Somerset Folly with mature level gardens to front, side and rear as well as a garage and double width gravelled driveway.

Timsbury is a popular country village location which lies approximately 5 miles south of the Georgian City of Bath which has a renowned range of educational, cultural and shopping facilities. The village offers a range of local amenities including a hairdressers, chemist, convenience store, OFSTED outstanding primary school, church, doctors surgery, public house, café and community hall. There is a regular bus service through the village and for those wishing to commute to the major cities of Bristol and Bath access by road is good. The towns of Keynsham and Midsomer Norton are close by.

In fuller detail the accommodation comprises (all measurements are approximate):

GROUND FLOOR

OPEN CANOPIED PORCH

Part glazed front door and reeded glass side panel leading to

'L' SHAPED ENTRANCE HALL

Radiator, airing cupboard with fitted shelving and hot water cylinder, separate cupboard with floor mounted Grant oil fired boiler. Staircase to first floor.

OPEN PLAN LIVING & DINING AREA (5.49m x 4.09m plus 3.95m x 3.35m (to max))

A spacious open plan area with a secondary glazed window to the front aspect and double glazed bay window to the side with secondary glazing. Reconstructed stone fireplace with wood burning stove, wall mounted uplighters, two radiators, double glazed door to conservatory and glazed double doors to

KITCHEN (3.24m x 3.20m)

Enjoying a dual aspect with a secondary glazed window to the front and double glazed window with secondary glazing to the side aspect. Double glazed door to the outside. Newly fitted range of wall and floor units with contrasting work surfaces. The units provide drawer and cupboard storage space with an inset stainless steel single drainer sink unit with mixer tap. Space for washing machine, fridge freezer and dishwasher, built in hob, back panel and stainless steel extractor hood with oven beneath. Electric panel heater.

CONSERVATORY (7.84m x 1.93m)

Double glazed windows overlooking the rear garden and connecting door to garden. Polycarbonate roof.

STUDY/BEDROOM (4.09m x 2.48m)

Double glazed window to side aspect, vaulted beamed ceiling, double glazed window overlooking the rear garden and double glazed velux style window providing additional light, wall lights, electric panel heater. Door to conservatory.

BEDROOM (4.75m x 3.16m)

Originally two bedrooms now merged into one, internal secondary glazed window to conservatory, two radiators, built in shelved cupboard (excluded from measurements).

BEDROOM (3.14m x 3.05m)

Secondary glazed window to front aspect, radiator.

BEDROOM (3.22m x 2.69m plus under stair recess)

Secondary glazed internal window to conservatory, radiator.

BATHROOM

Obscure glazed window to front aspect. Re fitted with a new suite in white with chrome finished fittings comprising low level wc, wash basin with tiled splashback and cupboard beneath and bath with shower screen and mixer tap incorporating shower attachment with "wet wall" surrounds. Heated towel rail.

FIRST FLOOR

LANDING

Access to roof space.

LOFT BEDROOM (5.76m to max x 3.91m with a ceiling height of 1.85)

This is a versatile space given its size with three double glazed windows overlooking the rear aspect, wall lights, electric panel heater and access to loft space. There is potential to create an en suite if required.

OUTSIDE

The property stands on an enviable corner plot.

FRONT GARDEN

Extensively lawned with mature flower and shrub borders. There are a number of managed trees with an outside water tap and a gravelled bed immediately to the front of the bungalow.

SIDE GARDEN

Laid to lawn with flower and shrub borders and an aluminium framed greenhouse.

REAR GARDEN

Enclosed by timber fencing and enjoying a good degree of seclusion. The garden is level laid to lawn with cultivated borders and a good size patio terrace immediately at the rear of the bungalow. There is a concealed oil storage tank, timber garden shed (with light and power) and aluminium framed greenhouse. A gate leads to the side garden.

GARAGE (5.16m x 2.69m)

Up and over entrance door, power and light connected, secondary glazed window to the rear and double glazed French doors leading to the rear garden. The front wall of the garage incorporates a door giving access to a small, enclosed storage space, making the garage wider at the back.

To the front of the garage lies a double width gravel driveway providing off street parking for at least 2 cars.

TENURE

Freehold

COUNCIL TAX

According to the Valuation Office Agency website, cti.voa.gov.uk the present Council Tax Band for the property is D. Please note that change of ownership is a ‘relevant transaction’ that can lead to the review of the existing council tax banding assessment.

AGENTS NOTES

The property has the benefit of a newly fitted kitchen and bathroom, redecoration throughout and new carpets (which are included in the sale price).

ADDITIONAL INFORMATION

Mains water and electricity are connected. The property has oil fired central heating. We understand that gas is available in the road. An alarm is installed.
Local Authority - Bath and North East Somerset Council.
Fixtures and Fittings - Please note the curtains in the property are not included in the sale and will be removed prior to completion.
The property is in an area of historic coal mining and buyers may wish to obtain a further report.
Mobile Coverage good externally & internally via O2 & Vodafone & variable via EE & Three - Source Ofcom
Superfast Broadband up to 80Mbp available - Source Ofcom

  • Versatile accommodation suitable both for family orientated buyers and downsizers
  • New refurbishment including new kitchen, new bathroom, carpets and decor
  • 'L' shaped entrance hall
  • Large open plan living and dining room with wood burning stove
  • Newly fitted kitchen with built in oven and hob
  • Large conservatory
  • Study/bedroom 5
  • 3 Bedrooms on ground floor and newly fitted bathroom
  • Large first floor bedroom with scope for en suite/kitchenette
  • Good size mature corner plot gardens, garage and gravelled driveway
Floorplan for Somerset Folly, Timsbury, Bath
EPC Graph for Somerset Folly, Timsbury, Bath
Similar Properties

Get an instant online valuation

Find out how much your property is worth