Redland Park, Bath

For Sale £280,000

3 1 1
A well-presented terraced home on the outskirts of Twerton.

This attractive terraced property is positioned in a delightful spot on the edge of Twerton, offering well-proportioned accommodation alongside lovely outdoor spaces.

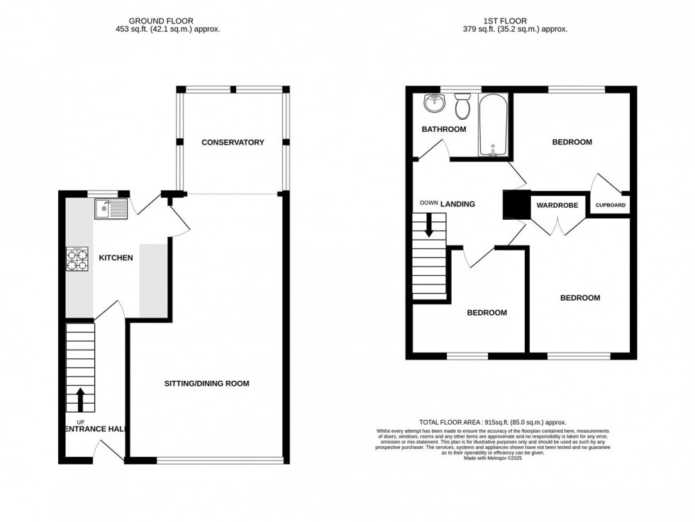
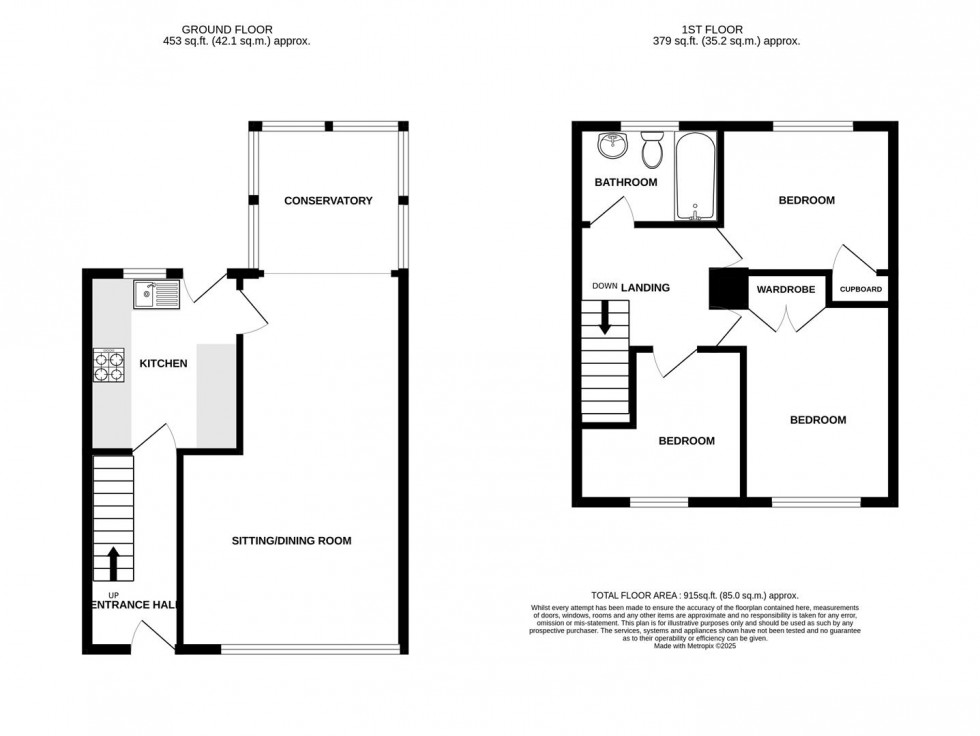
The home opens into a welcoming entrance hall with a staircase rising to the first floor and useful open storage beneath. To the right, a generous sitting/dining room enjoys excellent natural light thanks to a large front window and an opening into the rear conservatory — a versatile additional living space. The ground floor is completed by a modern, well-presented kitchen with ample storage and worktop space, as well as direct access to the rear garden.

Upstairs, there are three bedrooms — two doubles with built-in cupboards — and a stylish, modern fitted bathroom.

Outside, the front garden is mainly laid to lawn, creating an open and inviting approach. To the rear, a delightful garden backs onto a nature reserve, providing a peaceful outlook framed by trees and direct access via a rear gate.

HALLWAY

Entry via a uPVC door. Staircase leads to the first floor and there is useful open storage space below. Laminate flooring. Radiator.

SITTING / DINING ROOM (6.55 max x 3.87 narrow to 2.98)

A bright and inviting living space, featuring a large double-glazed window to the front that floods the room with natural light. The front section offers an ideal area to relax and entertain, while the rear of the room provides ample space for a dining table — perfect for family meals or gatherings with friends.

CONSERVATORY (2.59 x 2.32)

A versatile conservatory directly accessed from the dining area, with a glass roof and windows to the side and rear that flood the space with natural light. It enjoys lovely views of the trees beyond the garden and is finished with a practical laminate floor, making it an ideal spot to relax or use as an additional family space.

KITCHEN (3.09 x 2.65)

A double-glazed window with rear aspect overlooks the garden, while a matching double-glazed door provides direct access outside. The kitchen is fitted with a range of white wall and base units, including cupboards and drawers, offering ample storage. These are complimented by contrasting black laminate worktops and tiled splashbacks. There is space for a fridge freezer and electric cooker, along with plumbing and space for a washing machine.

FIRST FLOOR

LANDING

Loft access.

BEDROOM (3.31x 2.95 ext 3.44)

Double glazed window with a front aspect and roof top views due to its elevated position. Built in wardrobe. Radiator.

BEDROOM (3.44 x 2.59)

Double glazed window with a rear aspect with views over the garden and the trees behind. Built in cupboard. Radiator.

BEDROOM (l shaped 2.75 narrows to 1.78 x 2.58)

Double glazed window with a front aspect and roof top views due to its elevated position. Store cupboard. Radiator.

BATHROOM

This contemporary bathroom features a panel bath with a sleek glass shower screen and a thermostatic shower, complemented by Aqua back boards for a clean and modern finish. A stylish vanity unit with an integrated sink provides practical storage, while the enclosed coupled toilet maintains a streamlined look. Additional features include a heated towel rail, ceiling spotlights, and durable laminate flooring, combining functionality with elegant design.

OUTSIDE

FRONT

Open space laid mainly to lawn with a concrete pathway leading to the front door and a flower bed runs across the front of the property.

REAR GARDEN

The garden provides a lovely place to sit and relax, with the nature reserve behind and mature trees creating a pleasant green outlook. It features a lawned area with a pathway leading to the rear gate, as well as a patio that is ideal for alfresco dining. In addition, there is a useful brick-built store shed.

TENURE

Freehold.

COUNCIL TAX

According to the Valuation Office Agency website, cti.voa.gov.uk the present Council Tax Band for the property is B. Please note that change of ownership is a ‘relevant transaction’ that can lead to the review of the existing council tax banding assessment.

ADDITIONAL INFORMATION

Local authority. Bath and North East Somerset
Services. All mains services connected
Broadband. Superfast 149 mps source Ofcom
Mobile phone. Good signal outside on EE O2 Three Vodafone. Source Ofcom
The property is non standard construction. Make sure you discuss with your bank or mortgage broker if a mortgage is required.

  • Well presented terraced home
  • Property backs onto Twerton woods nature reserve
  • Enclosed rear garden
  • Set back from the road
  • Open plan lounge diner
  • Modern bathroom
  • Three bedrooms
  • Conservatory
  • Lovely light bright house
  • Tucked away spot
Floorplan for Redland Park, Bath
EPC Graph for Redland Park, Bath
Similar Properties

Get an instant online valuation

Find out how much your property is worth