Sheridan Road, Bath

For Sale £325,000

3 1
This terraced house sat in an elevated position provides opportunity for families, professionals and investors alike to secure a good-sized and well proportioned home. With three bedrooms, and far reaching views this property is perfect for those looking for a quieter location close to the city.

The house has been lovingly cared for, and in the family for almost 60 years. While it is in good condition, there is scope for modernisation as and when you see fit.

A real feature of this property is its mature tiered gardens to the front and rear, including plants, shrubs, seated patio areas and a workshop.

Internal viewing recommended.

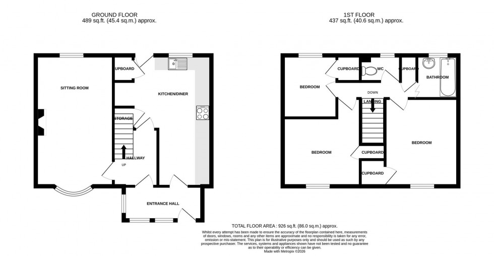
Ground floor

Entrance Porch (3.49 x 1.457)

Double glazed entrance door to wood panelled entrance porch with windows to the front and side aspect. Radiator, glazed doors to kitchen and

Hallway

Radiator, stairs to first floor, access to kitchen and living room

Living Room (3.261 x 5.504)

A dual aspect living room with double glazed windows to the front and rear. Bow window to front, radiator, living flame gas fire, tv point, internal obscured window to kitchen.

Kitchen (5.495 x 4.128)

'L shaped' kitchen breakfast room, again spanning the length of the property with double glazed window and door to the rear providing access to the garden. One and a half bowl sink with mixer tap, integrated eye level double ovens, electric hob with extractor over, space for further appliances such as fridge freezer & washing machine. Range of wall and base units, in built pantry/larder and further understairs storage cupboard. Vinyl flooring? Tiled splashbacks, radiator.

First Floor

Bedroom 1 (3.718 x 3.088)

Fully fitted with bedroom furniture including ample wardrobe and drawer storage space. Double glazed window to front aspect, with radiator beneath. Over stairs cupboard, access to roof space (with ladder/boarded?) Far reaching views.

Bedroom 2 (3.29 x 2816)

Another spacious double bedroom, with over stairs cupboard. Double glazed window to front aspect. Far reaching views. Radiator.

Bedroom 3

Currently presented with fully fitted office furniture. Double glazed window to rear, telephone point, shelved cupboard housing Worcester gas boiler, radiator.

Externally

The property benefits from mature tiered gardens to both the front and rear, the back garden a particularly notable feature with greenhouse, workshop with power & light and a paved seating area.

Additional Information

Local authority. Bath and North East Somerset
Services. All mains services connected
Broadband. Ultrafast 1000mps. Source Ofcom
Good external & internal mobile coverages available via EE, O2, Three and Vodafone. Source Ofcom.

  • 3 Bedrooms
  • Central staircase
  • Well proportioned accomodation
  • Mature gardens
  • Workshop
  • Well maintained with scope for modernisation
  • Far reaching views
  • Western side of Bath
  • Suitable for Familes or Investors alike
  • No onward chain
Floorplan for Sheridan Road, Bath
EPC Graph for Sheridan Road, Bath
Similar Properties

Get an instant online valuation

Find out how much your property is worth