Norman Road, Saltford, Bristol

For Sale £685,000

3 2 1
This delightful detached barn conversion forms part of a small group of properties in a backwater location on the northern side of the village just off the old village High Street adjacent to open countryside and within walking distance of The Bird public house, Bristol and Bath Railway path as well as the village hub on Bath Road with its range of shops and amenities and excellent transport links.

The barn was converted in a contemporary theme arranged across two floors with a large open plan living area and kitchen, double bedroom and large bathroom on the ground floor and two bedrooms and a shower room upstairs. The property is unique, discreetly set off a no through road approached over a gravel driveway. This offers ample parking and a large detached garage and store and attractive level gardens to the front and rear of the barn.

Saltford is an excellent strategic location between the cities of Bristol and Bath offering a range of village amenities and excellent local schools, both the village primary school and Wellsway at Keynsham. The cities of Bristol and Bath are within easy reach by road and public transport.

In fuller detail the accommodation comprises (all measurements are approximate):

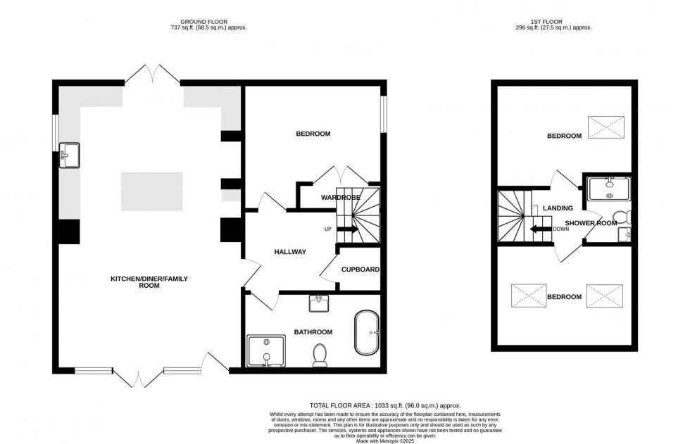
GROUND FLOOR

OPEN PLAN LIVING, FAMILY ROOM & KITCHEN (7.80m x 5.21m reducing 5.08m)

LVT flooring.
The living area to the front of the building is extensively glazed with double glazed windows and french doors opening to a south facing terrace. Feature exposed stone walling and beams and Contour wood burning stove set on flagstone hearth. Beamed opening to

KITCHEN

Double glazed french door leading to the rear garden and double glazed window to the side aspect. Cupboard containing Ideal gas fired combination boiler. The kitchen is furnished with an extensive range of modern wall and floor units with solid wood work surfaces and inset twin Belfast sink with mixer tap. Integrated dishwasher, washing machine and fridge freezer. Feature tiled recess with bressummer beam and cream Rangemaster cooker. Island unit with granite style work surface, ceiling mounted downlighters.

INNER HALLWAY

Deep built in storage cupboard, ceiling mounted downlighters.

BEDROOM (3.80m x 3.46m)

Double glazed window, built in wardrobes (included in measurements) ceiling mounted downlighters.

BATHROOM (3.80m x 1.72m)

Attractive suite in white with chrome finished fittings comprising wc, wash basin set in marble top wash stand with drawer and cupboard storage beneath. Free standing bath with tiled surrounds and mixer tap incorporating shower attachment and large fully tiled shower enclosure with thermostatic shower head. Ceiling mounted downlighters.

FIRST FLOOR

LANDING

Double glazed velux window, exposed ceiling beam.

BEDROOM (3.83m x 2.85m)

Double glazed velux style windows to front and rear aspect. Vaulted ceiling with exposed beams and downlighters. Radiator.

BEDROOM (3.84m x 2.53m)

Double glazed velux style windows to front and rear aspects, radiator. Vaulted ceiling with exposed beams and downlighters.

SHOWER ROOM

Sloping roof line. White suite with chrome finished fittings comprising wc, wash basin with cupboard beneath and tiled surrounds and fully tiled shower enclosure with thermostatic shower head. Heated towel rail, ceiling mounted downlighters.

OUTSIDE

The property is approached over a gravelled driveway over which Holly Barn has a right of way and leads to an extensive private gravelled parking and turning area. Block paved parking immediately to the front of the

LARGE DETACHED GARAGE (5.92m x 4.95m)

Personal door to the side, power and light connected.

GARDENS

FRONT GARDEN (9m x 5.5m)

Southerly facing and enclosed by hedging. Laid to lawn with a large paved terrace.

REAR GARDEN (10m x 7.5m)

Level and enclosed by fencing. The garden is laid to lawn with a wide paved patio terrace and laurel bushes. Outside power and light are provided. There is a sauna within the garden. There is a further gravel area to the side and rear of the barn

TENURE

Freehold. We understand the property is comprised currently in four titles which it is anticipated will be merged on completion.

COUNCIL TAX

According to the Valuation Office Agency website, cti.voa.gov.uk the present Council Tax Band for the property is B. Please note that change of ownership is a ‘relevant transaction’ that can lead to the review of the existing council tax banding assessment.

ADDITIONAL INFORMATION

Local Authority: Bath & North East Somerset Council.
The property is situated in Green Belt
The property has septic tank drainage
Mains water and gas and electricity are connected.
A small amenity paddock and stable block to the rear of the plot (with separate access) is available separately at £150,000.

  • Successfully fusing character features with contemporary fittings
  • A unique property
  • Open plan, living, family room & kitchen
  • Three double bedrooms (one downstairs)
  • Bathroom & separate shower room
  • Large detached garage and attached timber built store
  • Ample parking
  • Formal gardens to front and rear
  • Available with no upward sales chain
  • Paddock and stable block at the rear available by separate negotiation
Floorplan for Norman Road, Saltford, Bristol
EPC Graph for Norman Road, Saltford, Bristol
Similar Properties

Get an instant online valuation

Find out how much your property is worth