California Road, Oldland Common, Bristol

For Sale £510,000

3 1 1
This individual detached bungalow with its attractive bay fronted façade and Broseley tiled roof was originally constructed in 1959 by its only owner to his own specification. We understand the dormer conversion was added in 1972. The property is now in need of refurbishment and offers a great opportunity for a purchaser to renovate and modernise the accommodation and perhaps extend it to suit their own individual requirements. It is offered to the market without the complication of an ongoing sales chain.

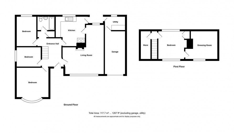
The property is approached through a spacious panelled entrance hall with oak strip flooring which continues into the 'L' shaped living and dining room. In addition there is a kitchen/breakfast room at the rear of the bungalow together with three bedrooms and a bathroom.

The first floor did not comply with building regulation requirements when it was added and should therefore be regarded as attic rooms rather than formal habitable accommodation. There is scope to provide a more formal loft conversion to add a significant amount of space to the first floor.

On the outside the property is slightly elevated from California Road with a block paved driveway and established front garden together with a large level rear garden which is a pleasant feature of the property.

The location between Oldland Common and Longwell Green is extremely convenient with access to the Drumway and cycle path as well as the amenities and schools locally with the added advantage of good access to the Bristol Ring Road.

In all, a fine opportunity to acquire a property to put your own stamp on and an early viewing is highly recommended.

In fuller detail the accommodation comprises (all measurements are approximate):

GROUND FLOOR

OPEN CANOPIED ENTRANCE PORCH

Glazed front door and side screen leading to

HALLWAY

A spacious introduction to the property with panelled walls and oak strip flooring. Open tread staircase to first floor, airing cupboard with hot water cylinder.

'L' SHAPED LIVING & DINING ROOM (4.77m x 3.40m plus 2.77m x 2.10m)

Wide leaded window to front aspect and window overlooking the garden to the rear. Stone fireplace with electric fire, two radiators, oak strip flooring.

KITCHEN/BREAKFAST ROOM (3.67m x 3.54m)

Window overlooking the rear garden, door to hallway and door to outside via an open rear porch. Furnished with a range of oak fronted wall and floor units comprising drawer and cupboard storage space with tiled worksurfaces and surrounds. Inset sink with mixer tap. Solid fuel two oven Aga (NB the Aga has not been used for some time, it provides hot water and will require recommissioning/overhauling prior to use).

BEDROOM (4.33m into bay x 3.92m)

Bay window to front aspect, radiator.

BEDROOM (3.62m x 2.41m)

Window overlooking the rear aspect, built in wardrobe and dressing table (included in measurements), radiator.

BEDROOM (2.92m x 2.42m)

Window to side aspect, radiator, built in wardrobe and dressing table (included in measurements).

BATHROOM

Obscure glazed window to rear aspect, half tiled walls. Suite of wc, pedestal wash basin and bath with electric independent shower above. Radiator.

FIRST FLOOR

ATTIC ROOMS

There are two interconnecting attic rooms within the non conforming loft conversion comprising

LANDING

Oak strip flooring, large eaves cupboard.

ROOM ONE (3.43m x 3.22m)

With a ceiling height of 2m. Windows to front and rear, built in wardrobe (excluded from measurements). Radiator, door to

ROOM TWO (4.0m x 3.44m)

Built in cupboard (included in measurements), window to front aspect.

OUTSIDE

To the front, the property is slightly elevated above California Road with a stone wall front boundary and gated access to

BLOCK PAVED DRIVEWAY

Providing off street parking for several vehicles and leading to the

INTEGRAL GARAGE (5.28m x2.42m)

With folding concertina entrance door, window to side aspect and connecting door to

UTILITY/CLOAK WITH WC (2.42m x 1.71m)

Window to rear aspect, tiled floor, fitted wall and floor units with inset sink. Semi low level wc, wall hung gas fired boiler, radiator. Door to open rear porch and garden.

FRONT GARDEN

Laid to lawn with flower and shrub borders and a flowering cherry tree. There is access to both sides of the bungalow leading to the rear garden.

REAR GARDEN (approximately 19m deep x 17m wide)

This is a large level enclosed garden comprising a paved patio terrace running the width of the bungalow at the rear with an aluminium framed greenhouse to one side. Beyond the terrace the garden is laid predominately to lawn with a number of trees including magnolia, golden chain, cherry laurel and black locust.

TENURE

Freehold. The property comprises two titles, GR353200 and GR7267.

COUNCIL TAX

According to the Valuation Office Agency website, cti.voa.gov.uk the present Council Tax Band for the property is E. Please note that change of ownership is a ‘relevant transaction’ that can lead to the review of the existing council tax banding assessment.

ADDITIONAL INFORMATION

Local Authority - South Gloucestershire Council.
All mains services are connected. Hot water is provided by the Aga which is in need of attention.
Mobile signal - EE, Vodaphone, O2 & Three, all good outdoor. Source: Ofcom.
Ultrafast (1000mbps) broadband available. Source: Ofcom.
As stated in the particulars the attic rooms do not have benefit of building regulation approval, therefore they should not be considered as habitable rooms.
The bungalow is situated in a coal mining reporting area where it is recommended a mining report is obtained by the purchaser as part of the conveyancing process.

  • Built in 1959 and in the same ownership since new
  • Great scope for updating and modernisation to suit the buyers individual requirements - with huge potential
  • Set on a good size plot, slightly elevated from the road to the front with a large level rear garden
  • Entrance hall
  • 'L' shaped living & dining room
  • Kitchen/breakfast room
  • 3 Bedrooms
  • Bathroom
  • 2 Interconnecting first floor attic rooms
  • Integral garage & block paved driveway
Floorplan for California Road, Oldland Common, Bristol
EPC Graph for California Road, Oldland Common, Bristol
Similar Properties

Get an instant online valuation

Find out how much your property is worth