The Barton, Corston, Bath

For Sale £520,000

2 1 2
This charming character cottage is ideally situated in the heart of the village, just a short stroll from the local shop and surrounded by beautiful countryside. It also benefits from excellent access to Bath, located only four miles away.

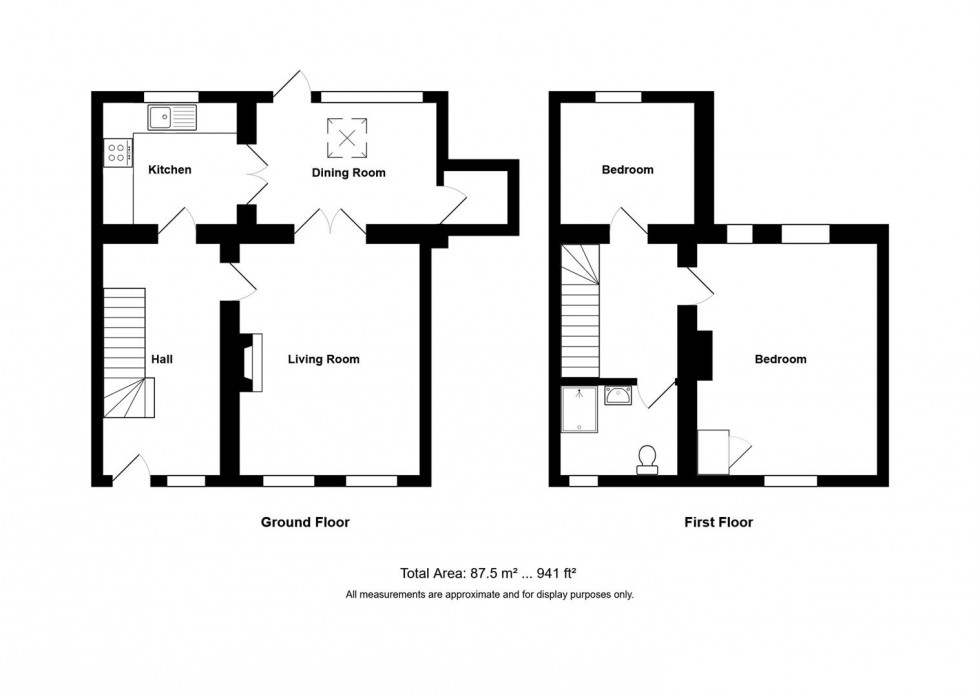
The property opens into a welcoming entrance hallway. To the right, you’ll find a cosy and characterful sitting room featuring a decorative inglenook fireplace, creating a warm and inviting atmosphere. To the rear, there is a bright and airy dining room with lovely views over the garden. Double glass doors lead through to a practical kitchen, complete with exposed stone walls that add to the cottage’s charm.

Upstairs, the first floor offers two well proportioned bedrooms along with a modern shower room.

Outside, the property boasts a generous cottage garden to the rear, mainly laid to lawn and bordered by attractive flower beds. It’s a delightful space, perfect for relaxing and enjoying the peaceful surroundings.

Corston is a small, peaceful village located just west of Bath in the English countryside. Known for its rural charm, Corston features traditional stone cottages, green open fields, and a close knit community atmosphere. The village is surrounded by scenic farmland and offers quiet living while still being conveniently close to the historic city of Bath. Local landmarks include a village church and nearby country pubs, and its own village shop making it an ideal place for those seeking a calm, countryside lifestyle with easy access to urban amenities.

HALLWAY

A stylish and inviting entrance lobby is accessed via a solid wood front door, creating an immediate sense of warmth and quality. The space offers ample room for coats and footwear, while remaining open to the main hallway to enhance the feeling of light and flow. A triple glazed window with an elegant tiled sill allows natural light to pour in, complementing the refined wall lighting. Further benefits include a discreet built-in cupboard housing the valiant boiler with additional storage, and a staircase gracefully rising to the first floor, completing this impressive introduction to the home.

SITTING ROOM (4.60 x 3.65)

A charming and characterful reception room, beautifully enhanced by two triple glazed windows to the front, each with deep window seats perfectly positioned for relaxing and enjoying the outlook. An impressive inglenook fireplace forms a striking focal point, featuring a stone backdrop, substantial wooden beam, and flagstone hearth, evoking warmth and period charm. An attractive inset shelf adds further character, while a radiator ensures modern comfort. Elegant glazed double doors open seamlessly into the dining room, creating an ideal flow for both everyday living and entertaining.

DINING ROOM (3.62 x 2.42)

A light and airy room, this delightful space enjoys views over the pretty garden through double glazed windows while additional natural light streams from a skylight set into the sloping ceiling. Exposed stone walls add a charming traditional touch, complemented by practical terracotta tiled flooring that combines style with durability. A pantry style cupboard provides useful storage, and ceiling spotlights enhance the bright, welcoming atmosphere. A double glazed door opens directly to the garden, and elegant glazed double doors lead seamlessly into the kitchen, creating an ideal flow for indoor and outdoor living.

KITCHEN (2.68 x 2.40)

A charming country style kitchen that combines traditional character with modern functionality including the original archway from a bread oven. Fitted with cream base units comprising cupboards and drawers topped with laminate surfaces, the kitchen features an inset sink with a stylish mixer tap. A double glazed window with characterful folding shutters, exposed stone walls, and terracotta tie flooring reinforce the home’s classic charm. Modern appliances include a built-in Neff oven, electric hob, and integrated fridge, while space is thoughtfully provided for a washing machine, ensuring practicality alongside timeless style.

LANDING

Featuring painted stone walls that add subtle character and texture, the landing is finished with warm wooden floorboards that enhance the traditional charm of the home. Loft access is conveniently provided, offering potential for additional storage.

BEDROOM (4.68 x 3.58)

A bright and inviting bedroom, featuring a front aspect double glazed window and two rear facing windows, allowing natural light to fill the space throughout the day. Traditional wood floorboards add warmth and character, complemented by a charming wood latch door providing access to the room. Radiator. Airing cupboard

BEDROOM (3.15 x 2.66)

Accessed via a charming wood latch character door, this room features a rear facing double glazed window that fills the space with natural light. A radiator provides comfort, making it an ideal bedroom, study, or versatile additional space.

SHOWER ROOM (2.28 x 1.80)

A characterful bathroom featuring a frosted triple glazed window for privacy and natural light. The room is fitted with a shower enclosed by a folding glass door and an electric shower, complemented by a vanity basin and a toilet. A charming exposed ceiling beam adds a touch of period character, blending traditional features with modern practicality.

REAR GARDEN

A true highlight of the property, this generous cottage style garden offers both charm and tranquillity. A patio area directly behind the house provides an ideal space for outdoor dining or relaxing, while a few steps lead up to a mainly lawned garden bordered with beautifully considered planting. The thoughtful, sympathetic planting enhances the traditional cottage feel, making it a delightful spot to unwind on sunny days. The garden is enclosed by hedging to the sides and an original wall to the rear and backs onto one of the Duchy fields, creating a private and picturesque outdoor retreat.

TENURE

Freehold

COUNCIL TAX

According to the Valuation Office Agency website, cti.voa.gov.uk the present Council Tax Band for the house is D. Please note that change of ownership is a ‘relevant transaction’ that can lead to the review of the existing council tax banding assessment.

ADDITIONAL INFORMATION

Local authority. Bath and North East Somerset
Services. All mains services connected
Mobile phone EE O2 Three Vodafone. All good outdoor signal
Broadband Ultrafast 1000mps Source Ofcom
The property is located within a conservation area
solar panels for water heating

  • Countryside walks on your doorstep
  • Village shop / post office at the bottom of the road
  • Peaceful tucked away location in the village of Corston
  • Lovely cottage garden to the rear
  • Lovely characterful home
  • Bath 4 Miles
Floorplan for The Barton, Corston, Bath
EPC Graph for The Barton, Corston, Bath

Get an instant online valuation

Find out how much your property is worth