Ludlow Close, Willsbridge, Bristol

For Sale £400,000

4 1 2
A 1980's detached house of a very popular style with an attractive Neo Tudor façade offering well balanced accommodation across two floors ideal for a family or downsizing. The property has been in the same ownership for a number of years and is now available with no upward sales chain offering scope for a purchaser to put their individual stamp on the accommodation through updating and modernisation.

The ground floor accommodation is approached through an entrance hall and has a downstairs cloakroom with wc, two linked reception rooms in addition, a double glazed conservatory at the rear and a modern fitted kitchen. On the first floor there are four bedrooms and a bathroom. Outside, lies an open plan front garden and a block paved driveway leading to an attached garage with a particularly pleasant rear garden with a westerly facing aspect backing onto a wooded glade.

Ludlow Close is a popular established cul de sac location within Willsbridge which is set on the A431 between the cities of Bristol and Bath which are 6 and 7 miles distant respectively. Willsbridge enjoys a pleasant community atmosphere and has facilities of a convenience store and petrol station within walking distance and is home to the Avon Valley Railway with access to the Bristol and Bath Railway Path. Nearby Longwell Green has a wider range of amenities including Gallagher Retail Park which has a Marks and Spencer store, Asda, B&Q, Lidl etc while nearby Keynsham has traditional High Street amenities, a Waitrose Food Store and a railway station. The location enjoys easy access to the Bristol Ring Road.

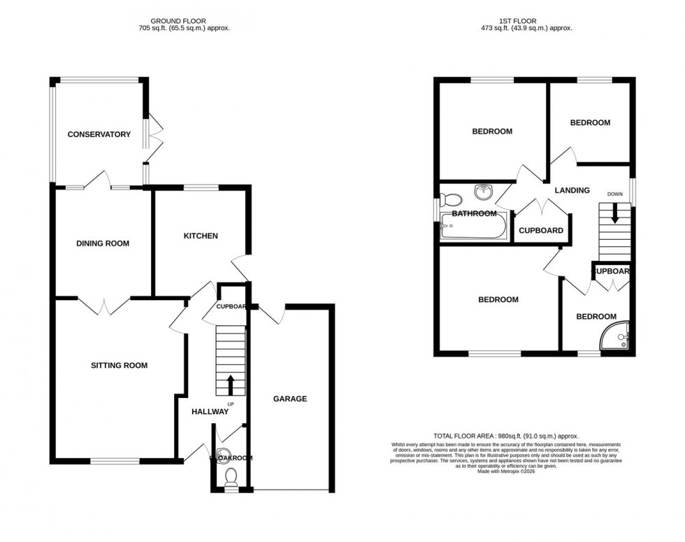
In fuller detail the accommodation comprises (all measurements are approximate):

GROUND FLOOR

Part glazed entrance door to

HALLWAY

Staircase rising to first floor with cupboard beneath which contains the gas fired boiler. Radiator.

CLOAKROOM/WC

Double glazed window to front aspect. Suite of wc and wash basin with tiled splashback, radiator.

SITTING ROOM (4.68m x 3.80m)

Double glazed leaded bay window to front aspect, radiator. Glazed double doors to

DINING ROOM (3.16m x 2.88m)

Servery to kitchen, radiator, door and side windows to

CONSERVATORY (3.0m x2.79m)

Double glazed with a double glazed roof, leaded coloured top light windows and french doors leading to the garden. Tiled floor, radiator and electric panel heater.

KITCHEN (2.88m x 2.72m)

Window overlooking the rear garden and door to outside. Furnished with a range of modern wall and floor units providing drawer and cupboard storage space with contrasting worksurfaces and tiled surrounds, inset stainless steel one and quarter bowl sink with mixer tap, slot in cooker with stainless steel canopied hood above, radiator. Upright fridge/freezer included in the sale price.

FIRST FLOOR

LANDING

Access to roof space, window to side aspect, airing cupboard with hot water cylinder and shelving.

BEDROOM (3.62m x 3.15m)

Double glazed leaded window to front aspect. Wardrobes and drawer storage units included in the sale price. Radiator.

BEDROOM (3.18m x 2.80m)

Window overlooking rear garden and woodland beyond. Radiator.

BEDROOM (2.43m x 2.40m)

Window overlooking rear garden and woodland beyond. Built in wardrobe and drawer storage units (included in measurements). Radiator.

BEDROOM (2.17m x 2.0m)

Double glazed leaded window to front aspect, radiator, built in bulkhead cupboard (excluded from measurements) and low level cupboard (included in measurements) Corner shower enclosure with electric independent shower.

BATHROOM (2.17m x 1.80m)

Window to side aspect. Suite of bath with mixer tap incorporating shower attachment, wc and wash basin. Shaver point, tiled surrounds, radiator.

OUTSIDE

FRONT

To the front of the property is an open plan garden laid to gravel and lawn with shrubs and bushes. A block paved driveway provides off street parking to the front of the

ATTACHED GARAGE (5.22m x 2.39m)

Up and over entrance door, power and light connected. Plumbing for washing machine, door to rear garden.

REAR GARDEN (16m (max depth) x 8.5m)

This is a pleasant westerly facing garden which overlooks a wooded glade that adjoins the garden at the rear. There is a gated side access to the front of the property. Immediately at the rear is a paved patio terrace with outside tap. Beyond, the garden is laid to lawn and cultivated borders with shrubs and bushes, an ornamental pond and a further patio area at the rear of the plot. Aluminium framed greenhouse and shed.

TENURE

Freehold.

COUNCIL TAX

According to the Valuation Office Agency website, cti.voa.gov.uk the present Council Tax Band for the property is D. Please note that change of ownership is a ‘relevant transaction’ that can lead to the review of the existing council tax banding assessment.

ADDITIONAL INFORMATION

Local Authority : South Gloucestershire Council
The property lies in an area where Coal mining reports are recommended.
All mains services are connected. Gas fired central heating. There are solar panels on the south facing roof slope. We understand these are leased (further details on request).
Good Mobile coverage externally via EE, O2, Three & Vodafone and internally via Three & Vodafone (source - ofcom)
Ultrafast 1000Mbps broadband available (source - ofcom)

  • Available with no upward sales chain and scope for updating
  • Ideal family home in a convenient cul de sac setting, 6 miles from Bristol and 7 miles from Bath
  • Entrance hall with cloakroom/wc
  • 2 Linked reception rooms
  • Double glazed conservatory
  • Modern fitted kitchen
  • 4 Bedrooms
  • Bathroom
  • Block paved driveway & attached garage
  • Pleasant west facing rear garden backing onto woodland
Floorplan for Ludlow Close, Willsbridge, Bristol
EPC Graph for Ludlow Close, Willsbridge, Bristol
Similar Properties

Get an instant online valuation

Find out how much your property is worth