Bath Road, Saltford, Bristol

For Sale £975,000

5 2 3
An impressive 1920s detached family home, set within a generous 0.3 acre plot and positioned well back from Bath Road. Enjoying a private, south westerly facing garden, the property blends period character with a spacious and versatile layout, ideal for modern family living.

The ground floor offers three generous reception rooms alongside a substantial kitchen/breakfast room, creating a perfect balance of formal and informal spaces. To the first floor, there are four well proportioned bedrooms, one currently utilised as a home office, while a longstanding attic conversion provides a fifth bedroom with the added benefit of an en-suite cloakroom. Throughout, the property retains an abundance of original features, including leaded light windows, decorative ceiling cornices, a Minster stone fireplace and deep skirting boards.

Externally, the gardens are a real highlight. The rear garden is mainly laid to lawn with mature borders and thoughtfully designed seating areas, ideal for outdoor entertaining and al fresco dining. To the front, a further level lawn is complemented by a private driveway, carport and garage, providing ample off street parking.

Saltford is a sought-after village, perfectly positioned between the cities of Bristol and Bath. It offers a wide range of local amenities and is well served by excellent schools, including Saltford Primary and the highly regarded Wellsway School in Keynsham.

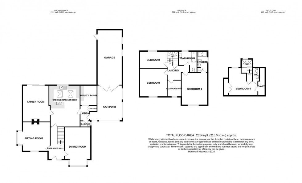
GROUND FLOOR

ENTRANCE HALL

Leaded windows to two aspects. Corniche ceiling. Double panel radiator. Staircase rising to the first floor with mahogany turned spindle balustrading and hand rail with useful understairs storage area.

SITTING ROOM (4.86 into bay x 4.34)

Leaded bay window with a side aspect. Further leaded window to a front aspect. Impressive Minster fireplace with an open grate. Double panelled radiator. Corniced ceiling.

DINING ROOM (5.56 into bay x 3.90)

Leaded bay window with front aspect. Double panel radiator. Shelved recess. Corniced ceiling and a dado rail.

FAMILY ROOM (5.42 x 3.88 extend to 4.06)

Coved ceiling. Wood burning stove. Sliding double glazed patio doors lead out to the garden.

FAMILY KITCHEN (6.17 x 4.56 narrow to 4.35)

Leaded window with a view over the garden. Two Velux windows allows light to flood in. Coved ceiling. Range of wall and base units offer flexible storage solutions with granite worktops. Inset sink with a mixer tap. Built-in five burner gas hob with a stainless steel hood above. Built-in waist level oven and microwave. Built-in wine fridge. Opens up into a dining area ideal for entertaining.

SIDE LOBBY (2.15 x 1.43)

Tiled floor and a door leads out to the side of the property. Cupboard.

CLOAKROOM (1.43 x 0.86)

Tiled floor. Low level WC and a corner wash hand basin. Part tiled walls. Leaded window.

UTILITY ROOM (2.80 x 2.52)

Fitted wall and a base units. Laminate worktop with an inset sink and mixer tap. Space and plumbing for a washing machine and separate space for a chest freezer. Leaded window and a door leads out to the garden.

FIRST FLOOR

LANDING

Staircase raising to second floor. Cupboard.

BEDROOM 1 (4.73 x 3.85)

Leaded windows with a front aspect with lovely views towards Upton Cheyney. Coved ceiling. Double panel radiator. Range of mahogany finished bedroom furniture comprising wardrobes with hanging and shelf space, drawer storage and beside cabinets.

ENSUITE SHOWER ROOM

Suite with a low level WC pedestal wash hand basin and shower cubicle with thermostatic shower. Tiled walls and floor. Shelved cupboard.

BEDROOM 2 (4.32 x 4.02)

Leaded window with a front aspect. Coved ceiling. Fitted wardrobes.

BEDROOM 3 (4.02 x 2.50)

Leaded window with a rear aspect. Coved ceiling. Radiator. Range of built-in wardrobes.

BEDROOM 4 / STUDY (2.44 x 2.13)

Leaded window with a front aspect. Bulkhead shelf ( included in the measurements.) Fitted shelving. Radiator.

FAMILY BATHROOM

Tiled walls and floors. White suite comprising panelled bath with a shower screen and mixer tap incorporating a shower attachment, low level WC, wash hand basin set in a marble topped vanity unit with a cupboard underneath and a store cupboard to the side. Leaded window with a rear aspect. Double panel radiator.

SECOND FLOOR

BEDROOM 5 (4.17 ix 2.17 widening to 3.26)

uPVC double glazed window with a rear aspect. Electric panel heater. Sloping roof line. Built-in wardrobes. Door access to the roof space.

EN SUITE CLOAKROOM

Tiled floor and part tiled walls. White suite comprising toilet and pedestal wash hand basin.

OUTSIDE

FRONT

The property enjoys a large frontage laid mainly to lawn and a driveway leads to the carport and garage which has double doors 8.17m x 3.71 m (26ft 10 x 12ft 2) and has power and light with a personal door to the rear . There is a stone wall to the front of the garden and flower borders.

REAR GARDEN

There is a lovely garden that runs behind and to the side of the property. It benefits from a south westerly aspect and a great deal of seclusion. The garden is laid mainly to lawn with mature plants and shrubs which are edged by sleepers. There is a beautiful Magnolia tree and an aluminium greenhouse . To one side of the garden is a patio with a brick built barbecue making an ideal area for alfresco dining.

TENURE

Freehold

COUNCIL TAX

According to the Valuation Office Agency website, cti.voa.gov.uk the present Council Tax Band for the house is G. Please note that change of ownership is a ‘relevant transaction’ that can lead to the review of the existing council tax banding assessment.

ADDITIONAL INFORMATION

Local authority. Bath and North East Somerset.
Services. All mains services connected
Broadband. Ultrafast 1000 mps
Mobile phone. EE O2 Vodafone all good outdoor signal. Three variable outdoor signal. Source Ofcom

  • Three reception rooms
  • Generous size kitchen breakfast room
  • Large garage with power and light
  • Utility and cloakroom
  • 4/5 Bedrooms
  • Lovely enclosed rear garden
  • Period charm and character
  • Excellent local schools
  • Ample off street parking
  • Well positioned for access to Bristol and Bath
Floorplan for Bath Road, Saltford, Bristol
EPC Graph for Bath Road, Saltford, Bristol
Similar Properties

Get an instant online valuation

Find out how much your property is worth