St. Anthonys Drive, Wick, Bristol

For Sale £400,000

2 1 1
This beautiful detached bungalow is well, located in a popular and tucked away location whilst still offering good access to both Bristol and Bath.
The Property is set ack from the road and provides a front garden and a driveway which leads to a garage.
Internally then property is very well presented and is access via a side door into and entrance hallway. To the left you arrive into a spacious sitting room with a focal point fireplace and has a wonderful light bright feeling due to large window which also provide a pretty outlook. The L shaped space gives different zones for a sitting room and a dining room of which can be found a modern contemporary kitchen.
There are two excellent bedrooms one of which is currently being used as an extra reception room and there is a well presented shower room serving the property.
The rear of the property can found a beautiful garrden with mature plants and shrubs and a lawned area. To the rear is a summer house and patio space ideal for alfresco entertaining.

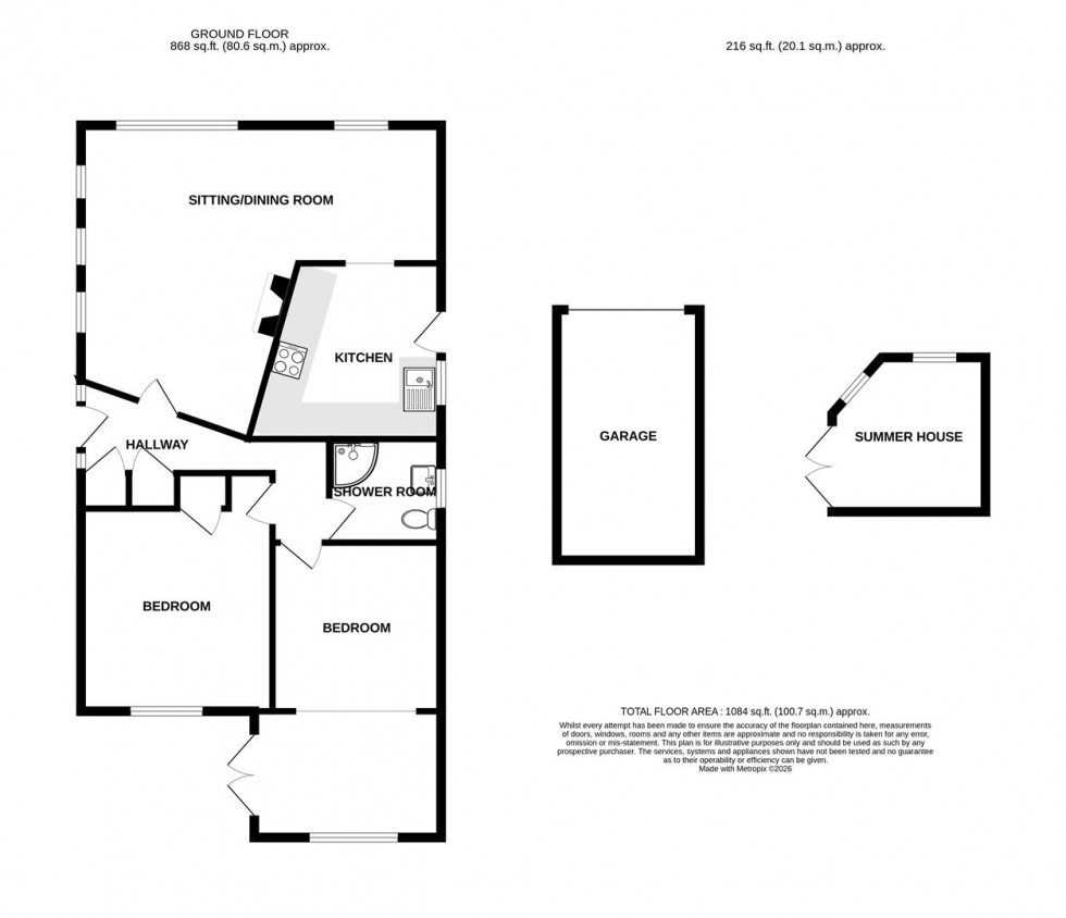
HALLWAY

Entry via a uPVC door with a decorative window panel and double frosted window each side. Coved ceiling. two storage cupboards. Radiator

SIITING / DINING ROOM (6.68 max x 4.74 max)

A spacious L shaped room offer open plan styling whilst providing two zones for one for dining and one as a sitting room. Double glazed windows to the front let light flood in with a further three smaller double glazed window to a side aspect allow further light into the room. A focal point fireplace is provided with an cream ornate surround and cream hearth. An archway separate the two spaces. Coved ceiling

KITCHEN (3.52 max x 2.82)

A very well presented modern style kitchen. It consist of a range of modern wall and base units comprising cupboards and drawers with a black and white speck worktop and stainless steel splashbacks. There is a range of built in appliances including a double oven, electric hob, stainless steel cooked hood, dishwasher and an under counter fridge. a cupboard house the housed the combi boiler. Double glazed window with a side aspect with a double glazed door providing side access. The modern finish i completed with ceiling spot lights

BEDROOM (3.49 x 3.61)

Double glazed window with views to the garden. Built in cupboard. Radiator and ceiling spot lights.

BEDROOM 2 (5.51 x 3.49 narrows to 3.06)

The room is currently being used as a further reception room but could be a further luxury bedroom which is split into to open plan zones. Double glazed windows look out tot he garden and direct access is provided via doble glazed French doors. Two radiators. Coved ceiling.

SHOWER ROOM (2.09 1.92)

The quality modern style continues here with a corner shower with a thermostatic shower and the walls benefiting from aqua boarding giving a high quality practical finish. There is a vanity and toilet in a white finish. The practical finish continues with vinyl flooring and there are ceiling spot lights and a Radiator

OUTSIDE

FRONT

The property is set Baack from the road in a delight cul de sac. This provides for a pretty front garden laid mainly to lawn with a centre patio circle as a focal point. There a flower borders with plants and shrubs with a stones chipped area to the front whilst a block driveway provides parking for cars and leads to the garage.

GARAGE (4.80 x 2.67)

Up and over door .

REAR GARDEN

A beautifully presented garden awaits you here with it being split over different levels. The first level is laid mainly to lawn with mature flower borders containing mature plants and shrubs. A pathway provides access to the garden whilst a side gate give access to the driveway. Thee rear of the garden has a patio seating area ideal for seating or a table to enable you to enjoy this peaceful spot. On the patio is a summer house to further enjoy the garden space and views. The property is enclosed by fencing and provides privacy.

TENURE

Freehold with a ground rent lease of 999 years from 18/7/1961

COUNCIL TAX BAND

According to the Valuation Office Agency website, cti.voa.gov.uk the present Council Tax Band for the property is D. Please note that change of ownership is a ‘relevant transaction’ that can lead to the review of the existing council tax banding assessment.

ADDITIONAL INFORMATION

Local authority. South Gloucestershire
Services. All mains services connected
Mobile phone signal. EE O2 Three Vodafone. All good external signal. Source Ofcom
Broadband Superfast 53mps Source Ofcom
The property is located with in a coal mining reporting area

  • Pretty gardens to front and rear
  • Garage and a driveway
  • Summerhouse
  • Pretty location in a popular location
  • Modern and contemporary kitchen
  • Cul de sac location
  • Access to local amenities
  • High quality finish shower room
  • Good access to Bristol and Bath
Floorplan for St. Anthonys Drive, Wick, Bristol
EPC Graph for St. Anthonys Drive, Wick, Bristol
Similar Property

Get an instant online valuation

Find out how much your property is worth