Chelwood Road, Saltford, Bristol

Sold Subject to Contract £335,000

3 1 2
An exciting opportunity to put your own mark on this generous sized property located in Chelwood Road, Saltford. This end terraced house boasts two separate reception rooms, a generous corner plot with off street parking, garage and the opportunity to update and improve. The true gem of this property is the outstanding view to the rear of Kelston Round Hill.

Situated close to the village shops and amenities, this property offers the perfect blend of tranquillity and convenience. Whether you are looking to explore the historic city of Bath or the vibrant city of Bristol, this location provides easy access to both, making it an ideal choice for those seeking a well-connected home.

Saltford is a highly regarded village, offering a wide range of local amenities and excellent schooling, including the village primary school and Wellsway School in Keynsham.

Don't miss out on the opportunity to make this property your own.

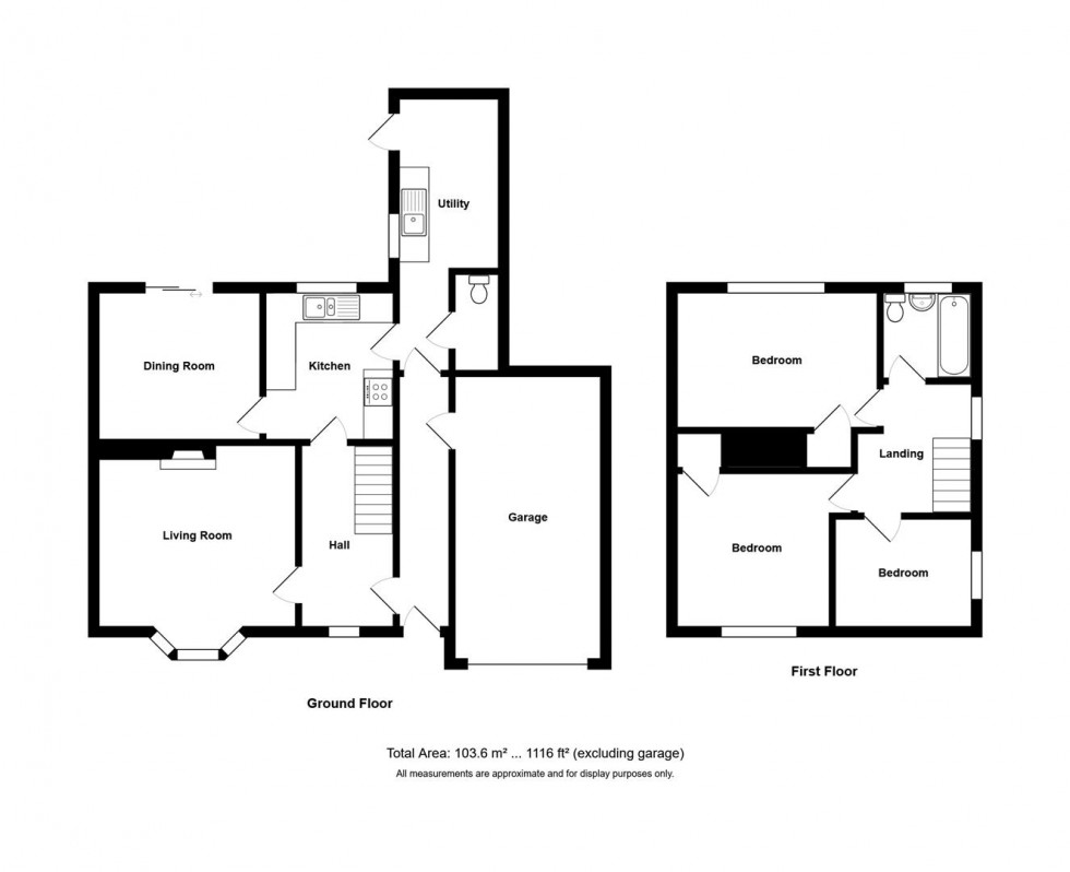
In fuller detail the accommodation comprises (all measurements are approximate):

GROUND FLOOR

HALLWAY (3.76m x 1.90m)

Feature circular window, radiator, original panelled staircase, space under stairs, cupboard housing meters and fuse box.

SITTING ROOM (4.09m x 4.37m into bay max)

Feature double glazed bay window, radiator, gas coal effect fire, 3 wall lights.

KITCHEN (3.02m x 2.64m)

Wooden units, laminate worktops, built in single electric oven, solid plate stainless steel hob with extractor fan above, cupboard housing Vaillant boiler, 1.5 bowl inset sink with single mixer tap, radiator, tiled splash backs, views from double glazed window to hills beyond, glazed wall units, lino floor tiles.

DINING ROOM (3.04 x 3.34m)

Double glazed sliding patio doors to rear garden, radiator, built in storage cupboard with bifold wooden door, laminate flooring.

OUTBUILDING/UTILITY ROOM (3.57m extends to 5.66m x 2.08m narrows to 1.12m)

Double glazed window, wooden half glazed door to rear garden, single inset sink with drainer and mixer tap set in laminate work top, plumbing for washing machine.

SIDE PASSAGE (5.28m x 0.99m)

Doors leading to hallway, garage and utility room, Velux window.

CLOAKROOM (1.94m x 0.99m)

Toilet, light.

UPSTAIRS

LANDING (2.79m x 1.9m)

Double glazed window, loft access.

BEDROOM 1 (3.03m x 4.14m)

Double glazed window with uninterrupted views of Kelston Roundhill, coving, radiator, built in wardrobe with original panelled door.

BEDROOM 2 (3.16m x 3.15m)

Double glazed window with front aspect, radiator, built in wardrobe with original panelled door.

BEDROOM 3 (2.22m x 2.87m)

Double glazed window to side, radiator.

BATHROOM (1.71m x 1.9m)

Cream three piece bathroom suite comprising bath, basin and toilet, wooden bath panel, electric Mira shower over bath, radiator, double glazed window.

GARAGE (5.6m x 3m)

Lighting, power, pitched roof, up and over single garage door, door to side passage.

OUTSIDE

FRONT

Double wrought iron gates, single gate, concrete driveway, gravelled areas, raised brick-edged borders, brick boundary wall.

REAR GARDEN

Long garden mainly laid to lawn with stunning views to hills, patio, outside lights, variety of shrubs and bushes, fence panels and hedge boundaries

TENURE

Freehold

COUNCIL TAX

According to the Valuation Office Agency website, cti.voa.gov.uk the present Council Tax Band for the property is C. Please note that change of ownership is a ‘relevant transaction’ that can lead to the review of the existing council tax banding assessment.

ADDITIONAL INFORMATION

Local authority. bath and North East Somerset
Services. All mains services connected
Mobile phone. EE Three Vodafone good outdoor signal. O2 Variable outdoor signal. Source Ofcom
Broadband. Ultrafast 1000mps Source Ofcom

  • Enclosed level gardens
  • Close to village shops and amenities
  • Off street parking
  • Generous corner plot
  • Two reception rooms
  • Opportunity to improve
  • Good transport links
  • Garage
  • Lovely open view to the rear
Floorplan for Chelwood Road, Saltford, Bristol
EPC Graph for Chelwood Road, Saltford, Bristol
Similar Properties

Get an instant online valuation

Find out how much your property is worth