Napier Road, Bath

Sold Subject to Contract £675,000

4 2 2
Welcome to this modern detached house located on Napier Road in the beautiful city of Bath. This property boasts four bedrooms, perfect for a growing family or those in need of extra space. With two bathrooms, this home offers convenience and comfort for its residents.

Situated on the edge of Bath, this house provides stunning open views to fields, allowing you to enjoy the tranquillity of the countryside while still being close to city amenities. The rear extension of the property provides generousl accommodation, giving you ample space to relax and entertain.

One of the highlights of this property is the open plan kitchen diner / family room which is sure to impress, ideal for any family or for entertaining. Additionally, there is plenty of space at the front of the house for parking and a generously sized garage ensuring convenience for you and your guests.

Located in a popular tucked away location, this house provides a perfect blend of privacy and accessibility. Don't miss the opportunity to make this wonderful property your new home in the heart of Weston.

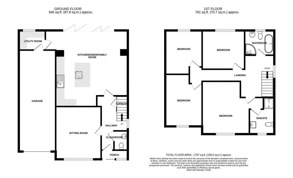
In fuller detail the accommodation comprises (all measurements are approximate)

PORCH

It features a double glazed window and a double glazed sliding door, with a uPVC door providing access to the hallway.

HALLWAY

The staircase rises to the first floor and incorporates a storage cupboard beneath, with a double glazed side aspect window and a radiator.

CLOAKROOM

The cloakroom comprises a low level WC and vanity wash hand basin, with a double glazed frosted side aspect window and a tiled floor.

SITTING ROOM (4.24 x 3.63)

The room is well proportioned ideal for hosting and benefits from a large double glazed window providing an abundance of natural light, along with a radiator.

KITCHEN DINER FAMILY ROOM (6.09 max x 5.81)

A fantastic open plan space, ideal for both entertaining and family living, with laminate flooring flowing throughout. The kitchen area comprises a range of white fronted wall and base units with grey worktops, featuring a one and a half bowl sink with mixer tap and subway style tiled splashbacks, creating a modern and contemporary feel. This is complemented by a matching central island with cupboards, deep drawers and a breakfast bar with coordinating worktops.

There is a range of built-in appliances, including a double oven, dishwasher, electric hob, cooker hood, and fridge/freezer.

The room is thoughtfully zoned, with a designated family area and a further dining space to the rear. Bi-fold doors open onto the garden, while three roof lights and ceiling spotlights allow an abundance of natural light to flood the room. Two radiators provide additional comfort.

UTILITY ROOM (2.12 x 1.57)

Double glazed rear aspect window. Laminate worktops with space and plumbing for a washing machine and tumble dryer. Worcester combination boiler. Door providing access to the garage.

FIRST FLOOR

LANDING

A generous space with a double glazed side aspect window and loft access.

MAIN BEDROOM (3.68 x 4.24 into wardrobes narrows to 3.05)

Double glazed front aspect window allowing plenty of natural light. Mirror fronted wardrobes providing versatile storage solutions. Radiator. Door to the ensuite.

ENSUITE (3.03 narrows to 2.01 x 2.00)

Shower with glass door and thermostatic control, low level WC and vanity wash basin. Double glazed frosted window, tiled floor and heated towel rail.

BEDROOM (3.27 x 3.33)

Double glazed window with a rear aspect. Radiator.

BEDROOM (4.31 narrows to 3.66 x 2.37)

Double glazed window with a front aspect. Radiator.

BEDROOM (2.26 x 3.58)

Double glazed rear aspect window. Sloping ceilings. Radiator.

BATHROOM (2.42 x 1.97)

Double glazed frosted rear aspect window. Corner shower with glass door, featuring a thermostatic rainfall shower and a personal shower. Pedestal basin with mixer tap, panel bath with mixer tap and low level WC. Marble effect tiled floor and part tiled walls, heated towel rail, and extractor fan.

GARAGE (8.10 x 2.42)

Up and over garage door and a personal rear door providing access to the utility room. The garage is fitted with power and lighting.

OUTSIDE

FRONT

Driveway providing ample parking leading to the garage. Lawned front garden with a pathway to the front door, also offering side access to the rear garden.

REAR GARDEN

Split level garden with a patio area directly outside the bifold doors, ideal for alfresco dining. A few steps lead up to a lawned garden, enclosed by fencing. Side access is also provided.

TENURE

Freehold.

COUNCIL TAX BAND

According to the Valuation Office Agency website, cti.voa.gov.uk the present Council Tax Band for the property is E. Please note that change of ownership is a ‘relevant transaction’ that can lead to the review of the existing council tax banding assessment.

ADDITIONAL INFORMATION

Local authority. Bath and North East Somerset.
Services. All mains services connected.
Mobile phone. EE and Vodafone good outdoor signal. Three and O2 Variable outdoor signal. Source Ofcom.
Broadband ultrafast 1000mps source Ofcom.

  • Lovely tucked away location on the edge of Bath
  • Ample off street parking
  • Generously sized garage
  • Modern open plan accommodation
  • Four good sized bedrooms with an ensuite to the main bedroom
  • Separate sitting room
  • Kitchen with a centre island
  • No onward chain
  • Tiered garden
  • Weston All Saints Primary School close by
Floorplan for Napier Road, Bath
EPC Graph for Napier Road, Bath

Get an instant online valuation

Find out how much your property is worth