Witney Close, Saltford, Bristol

Sold Subject to Contract £500,000

3 1 2
A well presented detached family home offered with no onward chain, quietly tucked away in a cul-de-sac position and set back from the road. The property benefits from a pleasant front garden and a driveway providing off-street parking, creating a private and welcoming approach. Its peaceful setting, combined with the close proximity to Saltford Primary School and short walk to the centre of the village, makes this an ideal family home.

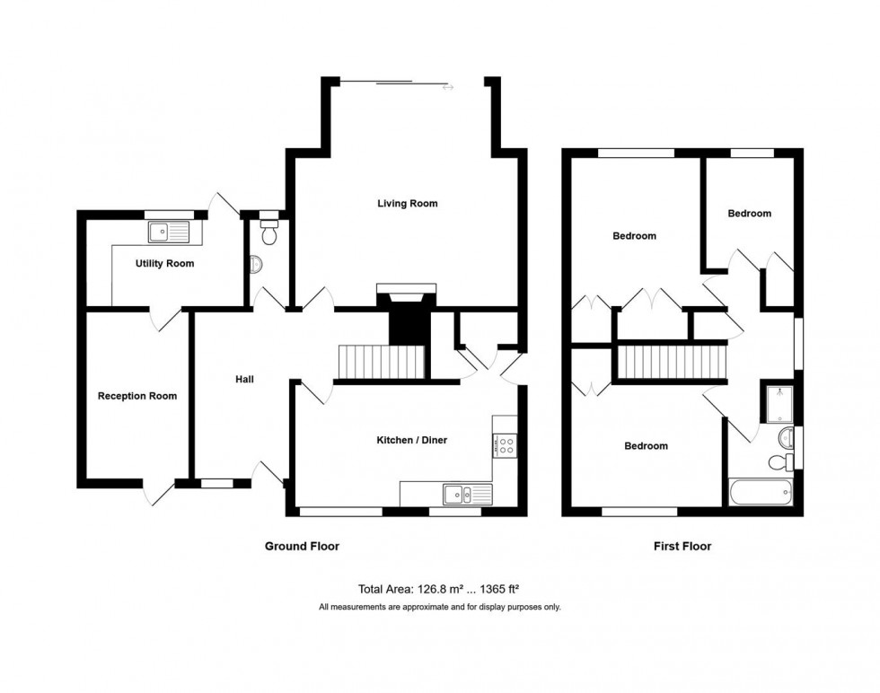
The ground floor offers a spacious and versatile layout, beginning with a generous entrance hallway. From here, there is a well proportioned sitting room featuring full height patio doors that overlook the garden, allowing plenty of natural light. A further reception room provides flexible use as a home office or playroom. The heart of the home is the good sized kitchen/diner/family room, perfect for everyday family life and entertaining, complemented by a separate utility room. A cloakroom completes the ground floor accommodation.

To the first floor are three well sized bedrooms served by a family bathroom.

Outside, the property enjoys front and rear gardens. The front garden sets the house well back from the road and incorporates the driveway, while the enclosed rear garden is well proportioned and ideal for family use.

Saltford is a highly regarded village, strategically located between the cities of Bristol and Bath, offering a wide range of local amenities and excellent schooling, including the village primary school and Wellsway School in Keynsham. Both cities are easily accessible by road and public transport.

In fuller detail the accommodation comprises (all measurements are approximate):

ENTRANCE HALL

Accessed via a timber front door with frosted glazed panels and a complementary side window, creating a light and welcoming first impression. The hallway features a ceiling light tube and recessed spot lighting with stairs rising to the first floor and a bespoke built in console table to the side. Finished with a phone point and thermostat controller.

SITTING ROOM (5.33 into bay x 5.35)

Double-glazed, full height patio doors and an additional window provide attractive views over the garden that allows an abundance of natural light. A brick finished fireplace with tiled hearth, wood mantel and inset gas fire forms a charming focal point to the room. Recessed ceiling spotlights enhance the sense of space, creating a generous and welcoming room ideal for both family living and entertaining.

RECEPTION ROOM (4.15 x 2.43)

Accessed via a contemporary glazed panel door, with a front facing window providing natural light. Built-in cupboard housing the electric meter. This versatile room would make an ideal home office, playroom or additional reception space.

CLOAKROOM (2.03 x 0.93)

Fitted with a wall hung basin and floor standing WC, complemented by a frosted double glazed window. Partially tiled walls and a tiled floor provide a clean, contemporary finish. Recessed ceiling spotlights and a radiator complete this practical and stylish space.

KITCHEN DINER / FAMILY ROOM (5.33 x 2.92 ext to 3.90)

Two front facing double glazed windows, along with a frosted glazed door to the side, provide abundant natural light and direct access to the garden. The kitchen features a range of wood fronted wall and base units with laminate worktops and tiled splashbacks, complemented by an inset white one and a half sink with drainer and mixer tap.

A suite of integrated appliances includes a Neff double oven, Bosch electric hob, Neff cooker hood, slimline dishwasher and under counter fridge and freezer and additional space for a microwave. Wood laminate flooring offers a practical and stylish finish. Additional storage is provided by a pantry cupboard with shelving and a separate cupboard housing the boiler.

UTILITY ROOM (3.63 x 2.08)

A practical and stylish space with access to the garden via a door and a rear facing double glazed window allowing natural light to flow through. Recessed ceiling spotlights and a tiled floor add a modern touch. Cream fronted wall and base units are finished with a laminate worktop and tiled splashback, with space and plumbing for a washing machine and tumble dryer. Ideal for everyday family living and keeping the home organised.

LANDING

A bright and practical space with a side facing double glazed window allowing plenty of natural light. A cupboard conveniently houses the hot water tank, while recessed ceiling spotlights complete this functional area.

BEDROOM (3.61 x 2.96)

A bright and airy room with a front facing double glazed window that floods the space with natural light. Loft access adds practical storage, complemented by a built-in cupboard and a radiator, creating a comfortable and elegantly functional bedroom.

BEDROOM (3.93 x 2.95)

A well proportioned room with a rear facing double glazed window overlooking the garden, filling the space with natural light. Featuring two built-in wardrobes, a radiator and recessed ceiling spotlights. This bedroom combines practicality with an elegant, comfortable atmosphere.

BEDROOM (2.69 x 2.37)

A bright room with a front facing double glazed window, providing natural light throughout. Featuring a radiator and a built-in cupboard, this bedroom offers a practical and comfortable space, ideal for family use or as a guest room.

BATHROOM (2.21 x 1.68)

A stylish and contemporary bathroom with a side facing frosted double glazed window, allowing natural light while maintaining privacy. Fitted with a tiled front bath, separate thermostatic shower with glass door, pedestal basin and WC, all complemented by matching tiled walls and floors. Recessed ceiling spotlights and a heated towel rail complete this elegant and practical family space.

OUTSIDE

FRONT

Set back from the road, the property enjoys a generous block driveway providing ample off street parking. The lawned frontage is complemented by mature borders with shrubs and a tree, creating an attractive and welcoming approach to the home.

REAR GARDEN

The garden is fully enclosed by fencing to the rear and side with a side gate providing convenient access. A block paved patio area creates the perfect space for alfresco dining, complemented by a pergola entwined with a mature vine. A few steps lead up to the main garden, featuring a well maintained lawn and mature flower borders. To the rear of the garden, a shed provides additional storage, making this an ideal outdoor space for family living and entertaining.

COUNCIL TAX

According to the Valuation Office Agency website, cti.voa.gov.uk the present Council Tax Band for the property is E. Please note that change of ownership is a ‘relevant transaction’ that can lead to the review of the existing council tax banding assessment.

TENURE

Freehold.

ADDITIONAL INFORMATION

Local authority. Bath and North East Somerset.
All mains services connected.
Broadband. Ultrafast 1000mps.
Mobile phone. EE O2 Vodafone. Good outdoor signal Three Variable outdoor signal.

  • Detached home in a popular cul-de-sac set back from the road
  • No onwards sales chain
  • Level plot with a secluded rear garden
  • Off street parking to the front
  • Well proportioned sitting room
  • First time to the market in over 30 years
  • Five minute walk to Saltford Primary School
  • Six minutes walk to the village centre
Floorplan for Witney Close, Saltford, Bristol
EPC Graph for Witney Close, Saltford, Bristol
Similar Properties

Get an instant online valuation

Find out how much your property is worth