Claverton Road, Saltford, Bristol

For Sale £650,000

3 1 2
This Classic 1950s double bay fronted Voisey built house is of an ever popular style, characterised by solid build quality, large amounts of natural light and generous room sizes. The property has been very well cared for during a long period in the current ownership and is now offered for sale without the complication of an upward sales chain. The house is ready to move into with scope to add value and put your own stamp on the accommodation and to carry out out alterations to suit individual requirements. There is also potential to enlarge the property by means of a loft conversion or formal extension, subject to obtaining necessary consents.

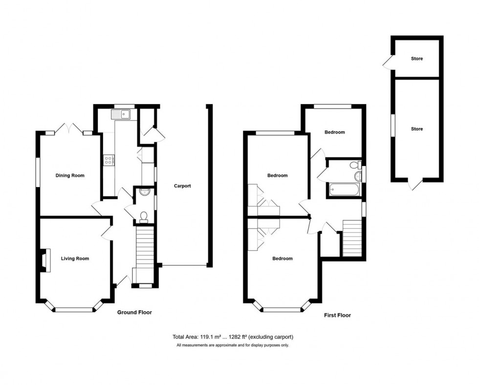
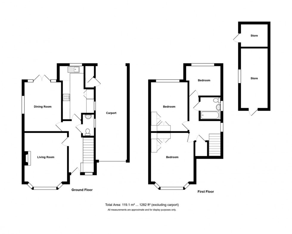
On the ground floor the accommodation is approached through a hallway with two reception rooms and kitchen as well as a downstairs cloakroom with wc. The first floor has three bedrooms and a modern bathroom.

On the outside the property has a block paved driveway and parking area to the front with a carport at the side which leads to a detached garage. The rear garden is of good size, level and enclosed.

Saltford is an excellent strategic location between the cities of Bristol and Bath offering a range of village amenities and excellent local schools, both the village primary school and Wellsway at Keynsham. The cities of Bristol and Bath are within easy reach by road and public transport.

The property enjoys a very convenient position opposite Saltford Primary School and within easy walking distance of the village centre with it's good range of amenities and excellent transport links to Bristol and Bath.

In fuller detail the accommodation comprises (all measurements are approximate):

GROUND FLOOR

Double glazed entrance door and leaded coloured double glazed side window leading to

ENTRANCE HALL

Staircase leading to first floor with cupboard beneath.

CLOAK/WC

Double glazed window to side aspect, tiled walls and floor. White suite comprising wc and wash basin, heated towel rail.

SITTING ROOM (4.62m into bay x 3.62m)

Double glazed bay window to front aspect, reconstructed stone fireplace with electric fire. Radiator.

DINING ROOM (4.15m x 3.05m)

Double glazed french doors with matching side windows leading to the rear garden.

KITCHEN (4.54m x 2.64m (to max))

Double glazed window overlooking the rear garden. Furnished with a range of Bosch wall and floor units with rolled edged work surfaces and tiled surrounds. Inset one and quarter bowl stainless steel sink, built in hob with extractor hood above and eye level double oven. Plumbing for washing machine, door to

LOBBY (Included in measurements)

Solid PVC door to outside. Boiler cupboard with Kingfisher gas fired boiler and concealed hot water cylinder above.

FIRST FLOOR

LANDING

Leaded coloured double glazed window to side aspect, shelved linen cupboard with radiator.

BEDROOM (4.76m into bay x 3.62m)

Double glazed bay window to front aspect. Furnished with a range of built in bedroom furniture including shelved cupboards, wardrobes, bedside cabinets, top boxes and dressing table (included in measurements). Radiator.

BEDROOM (4.16m x 3.02m)

Double glazed window overlooking the rear garden. Bedroom furniture including bedside tables, drawer storage, dressing table, wardrobes and shelved storage cupboard (included in measurements). Radiator.

BEDROOM (2.65m x 2.50m)

Double glazed window to rear aspect. Radiator.

BATHROOM (1.94m x 1.71m)

Double obscure glazed window to side aspect. Radiator, fully tiled walls. White suite comprising wc, pedestal wash basin and panelled bath with mixer tap incorporating shower attachment.

OUTSIDE

FRONT GARDEN

There is a walled boundary to Claverton Road with wrought iron railings and gates providing the approach to a block paved driveway with inset cultivated beds. The driveway provides off street parking and the approach to

CARPORT (7.70m x 2.30m)

Approached through a remote controlled electric roller door with two double glazed velux windows. Beyond the carport is a

DETACHED GARAGE (NOW STORE) (4.95m x 2.53m)

Power and light connected. PVC personal door and double glazed window. To the rear of the garage is a shed 2.40m x 1.72m with a PVC door.

REAR GARDEN (17.8m x 9.63m)

Level and enclosed garden, comprising a paved patio terrace immediately to the rear of the property, beyond which is a lawn with well tended flower and shrub borders. Outside power and water tap is provided.

TENURE

Freehold

COUNCIL TAX

According to the Valuation Office Agency website, cti.voa.gov.uk the present Council Tax Band for the property is E. Please note that change of ownership is a ‘relevant transaction’ that can lead to the review of the existing council tax banding assessment.

ADDITIONAL INFORMATION

Local Authority - Bath and North East Somerset Council.
We draw your attention to the fact that in the circumstances of these instructions we have not been able to carry out our usual level of due diligence with the vendor and therefore you should take particular note of any matters of concern to you prior to making an offer. We will try to answer whatever questions you may have to the best of our ability.
Mobile - Good coverage externally via EE, 3 & Vodafone, limited internally. (source - Ofcom)
Broadband - Ultrafast 1000Mbps broadband available (Source - Ofcom)

  • Very well cared for and ready to move into with no onward chain
  • Scope to add value and enlarge ( subject to necessary consents)
  • Entrance Hall
  • Downstairs cloakroom/WC
  • 2 reception rooms
  • Kitchen
  • 3 generous bedrooms
  • Bathroom
  • Good size level enclosed plot
  • Driveway parking, carport and detached garage
Floorplan for Claverton Road, Saltford, Bristol
EPC Graph for Claverton Road, Saltford, Bristol
Similar Property

Get an instant online valuation

Find out how much your property is worth