Fairfield Way, Keynsham, Bristol

Sold Subject to Contract £865,000

4 3 2
This superb modern detached house was constructed by Crest Nicholson in 2020 and is the largest house style within the Hygge Park development. It boasts quality fittings throughout in an attractive contemporary style with neutral decor and offers accommodation which is extremely energy efficient with an 'A' rated EPC with energy saving lighting and PV solar panels.

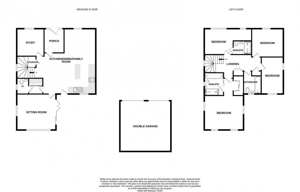
The property, in our opinion, is a particularly attractive design ideal for modern living. The ground floor is approached from an entrance porch to a large open plan kitchen dining and family room which is very much the hub of the home. The kitchen area is fitted with an excellent range of attractive wall and floor units with built-in appliances. Accessed from the kitchen is a utility room and downstairs cloakroom with WC. At the front of the property, is a good sized study or snug which could be equally used as an additional bedroom if required. At the rear, lies a well proportioned sitting room with bi-folding doors opening onto a landscaped rear garden. On the first floor, there are four well proportioned bedrooms. The main bedroom suite has a bathroom with four piece suite including a large walk-in shower together with a walk-in wardrobe. The second bedroom has an en-suite shower room with the two remaining bedrooms served by a good sized family bathroom.

On the outside, the house is approached over a block paved driveway which provides ample parking leading to a double garage. It is set within a pleasant plot with open plan shrubbery style gardens to the front and a walled rear garden which has been landscaped with pavings, shrub beds, ornamental pond and an attractive timber garden building.

Hygge Park is situated on the eastern side of Keynsham within easy walking distance of the Wellsway School complex and Waitrose food store. Two Rivers Primary School is close by as is the Flourish Farm Shop at Glenavon Farm.

There is easy access to the Bath Road with bus stops in both directions for regular buses to Bristol and Bath, while the town of Keynsham, just over a mile away offers a range of day-to-day amenities including a large landscaped park and a railway station.

GROUND FLOOR

OPEN CANOPIED ENTRANCE PORCH

Composite door. Double glazed side panels leading to

ENTRANCE PORCH

Radiator. Inner door to

SUPERB OPEN PLAN KITCHEN, DINING AND FAMILY ROOM (7.86m x 3.40m reducing to 3.79m)

LVT flooring. Two vertical radiators. Double glazed windows to front and rear aspects and double glazed door to rear garden. Staircase rising to first floor with cupboard beneath. Beautifully furnished with a range of contemporary handleless wall and floor units with matching worksurfaces and surrounds, inset stainless steel one and a quarter bowl sink unit with mixer tap, built-in Bosch appliances including an electric hob with concealed extractor above, eye level double oven, integrated dishwasher and fridge/freezer. Island unit with built-in storage cupboards and breakfast bar. Downlighters.

UTILITY ROOM (1.92m x 1.70m)

Fitted wall and floor units with worksurfaces and upstands, plumbing for washing machine and further appliance space, downlighters.

CLOAKROOM/WC

WC with concealed cistern and wall hung basin with mixer tap, tiled surrounds, heated towel rail, double glazed window to rear aspect, downlighters.

SITTING ROOM (4.69m x 4.33m)

A triple aspect room at the rear of the property with a deep double glazed picture window overlooking the rear garden, double glazed window to side aspect and four section double glazed bifold doors opening onto the garden. LVT flooring. Radiator.

SNUG/STUDY/BEDROOM (3.31m x 3.27m)

Double glazed window to front aspect with plantation shutters, LVT flooring, radiator.

FIRST FLOOR

Approached by a turning staircase from the ground floor with a double glazed window at the half landing level leading to

LANDING

Access to roof space. Double doors to cupboard with pressurized hot water cylinder and Potterton gas fired boiler. Slatted shelving. Separate shelved storage cupboard. Radiator.

BEDROOM SUITE (6.35m x 4.73m)

Bedroom suite comprising

BEDROOM

Dual aspect double glazed windows, two radiators.

WALK-IN WARDROBE

With excellent hanging and shelved storage space.

BATHROOM

White suite in a contemporary style with chrome finished fittings comprising bath with shower screen and mixer tap incorporating shower fitment, WC with concealed cistern, wall hung wash basin with mixer tap, large walk-in shower enclosure with thermostatic shower head. Fully tiled walls, heated towel rail, shaver point and downlighters. Double glazed window.

BEDROOM (5.86m max reducing to 3.50m x 3.36m)

Two double glazed windows to front aspect, radiator.

EN SUITE SHOWER ROOM

White suite with chrome finished fittings in a contemporary style comprising WC with concealed cistern and wall hung wash basin with mixer tap, shower enclosure with thermostatic shower head. Fully tiled walls, heated towel rail, downlighters.

BEDROOM (3.82m x 3.40m)

Double glazed window to front aspect. Radiator.

BEDROOM (4.30m x 2.65m)

Double glazed windows to front and side aspect. Radiator.

FAMILY BATHROOM (2.24m x 2.10m)

White suite and chrome fittings in a contemporary style comprising WC with concealed cistern, wall hung wash basin with mixer tap and bath with shower screen and mixer tap incorporating shower fitment. Fully tiled walls, heated towel rail.

OUTSIDE

The property is approached by a paved driveway, over which one neighbouring property has a right of way, leading to a private driveway to accommodate a number of vehicles, which is to the front of a

DOUBLE GARAGE (6.15m 6.10m)

Twin 'up and over' entrance doors, boarded attic area, power and light connected.

FRONT GARDEN

Landscaped in an open plan style with a Shrubbery.

REAR GARDEN (12m max x 10.5m)

Beautifully landscaped walled garden with Indian sandstone paving and inset cultivated beds with a variety of shrubs and bushes and an ornamental pond and water feature. There is an attractive 'Malvern' timber summerhouse. Outside power, water and light is provided. A hot tub is available by separate negotiation. To the side of the property, is a 'hidden' bin storage area with a gate leading to the driveway.

TENURE

Freehold. There is an estate management charge.

COUNCIL TAX

According to the Valuation Office Agency website, cti.voa.gov.uk the present Council Tax Band for the property is G. Please note that change of ownership is a ‘relevant transaction’ that can lead to the review of the existing council tax banding assessment.

ADDITIONAL INFORMATION

Local Authority. Bath and North East Somerset Council.
All mains services are connected. The property has PV solar panels which are owned.

  • Superb family home built by Crest Nicholson in 2020
  • Well presented throughout with quality contemporary fittings
  • Highly energy efficient with an A rating
  • Two reception rooms
  • Excellent open plan kitchen dining and family space - the hub of the home
  • Utility room and downstairs WC
  • 4 generous bedrooms (two ensuite) and family bathroom
  • Main bedroom suite with walk in wardrobe and bathroom
  • Landscaped gardens - walled to the rear
  • Double garage and driveway parking
Floorplan for Fairfield Way, Keynsham, Bristol
EPC Graph for Fairfield Way, Keynsham, Bristol
Similar Properties

Get an instant online valuation

Find out how much your property is worth