Avon Valley Farm, Keynsham, Bristol

For Sale £800,000

3 2 2
This attractive stone and tile barn is understood to have been converted to residential use in the 1990's, with a characterful two storey conversion and a sympathetic single storey rear extension to provide spacious accommodation with a good degree of inherent versatility. An attractive building, internally it has character features including ledged and braced internal doors, exposed beams, arrow slit windows and a turning staircase with galleried landing.

The accommodation offers good room sizes throughout. On the ground floor there is a spacious entrance hall, at the rear of the building opening onto the garden is a sizable living room which links to a dining room. The kitchen/breakfast room is well appointed with a range of modern units and a separate utility room. There is also an internal room used as a study as well as a bedroom. The upper floor has two good size double bedrooms. The main bedroom has a full range of built in wardrobes and a modern en suite bathroom. The other rooms are served by a well appointed family bathroom.

On the outside, the property is approached through double electric gates and is set in a pleasant secluded manageable plot with a gravelled driveway to the front as well as a lawned garden with a decked terrace and outdoor bar, while the rear garden is enclosed and laid mainly to lawn.

The Old Granary is situated at Avon Valley Farm on the eastern edge of Keynsham within the Wellsway School catchment area. This is a unique semi rural setting, the farm having been developed and diversified over many years. The Old Granary is found at the very end of Pixash Lane. This is a convenient location with good access to the A4 Bath Road, a mile from Waitrose and approximately 2 miles from the centre of Town with good access to Bristol and Bath.

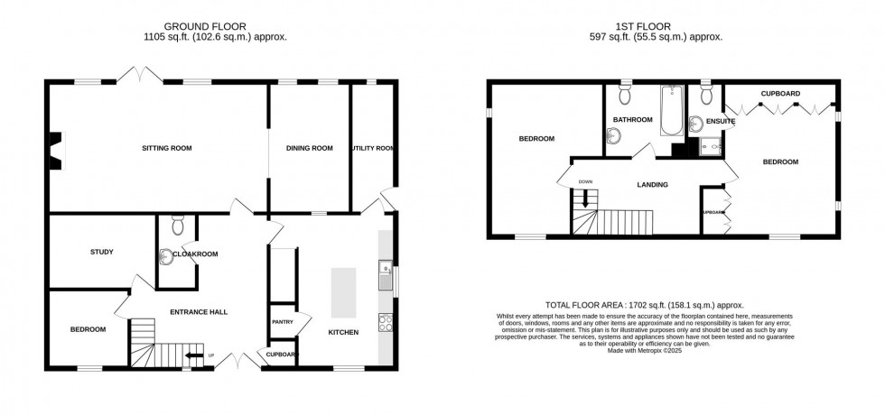
GROUND FLOOR

Timber entrance door and side panel with double glazed fan light above leading to

ENTRANCE HALL

A spacious introduction to the property with travertine tiled floor, radiator, coat cupboard and a turning staircase rising to the upper floor with a cupboard beneath and galleried landing above. Arrow slit window to front elevation.

CLOAK/WC

Fully tiled walls and floor. White suite with chrome finished fittings comprising wc, wash basin with mixer tap and cupboard beneath.

LIVING ROOM (7.10m x 4.22m)

A lovely characterful room with exposed ceiling beams with sloping roof lines. Feature fireplace with flagged hearth, two radiators, wall lights, double glazed window overlooking the rear garden and double glazed french doors opening onto the garden. Internal arrow slit window.

DINING ROOM (4.13m x 2.63m)

Two double glazed windows to rear aspect. Exposed ceiling beams, radiator, servery to kitchen.

KITCHEN/BREAKFAST ROOM (5.22m x 3.17m)

Double glazed windows to front and side aspects. Shelved pantry (excluded from measurements). Beamed ceiling, travertine tiled floor, radiator. The kitchen is furnished with a range of modern wall and floor units providing drawer and cupboard storage space with solid wood work surfaces and tiled surrounds. Belfast sink with mixer tap, integrated dishwasher, Rangemaster range cooker with stainless steel canopied extractor hood above, integrated microwave. Island unit with breakfast bar overhang, integrated wine racks and wine chiller. Recess with plumbing for washing machine.

UTILITY ROOM (4.07m x 1.46m)

Double glazed door to outside, travertine tiled floor, stable door to kitchen. Floor mounted Worcester oil fired boiler, space for an American upright fridge/freezer.

INTERNAL STUDY (3.56m x 2.47m)

Radiator.

BEDROOM (2.57m x 2.65m)

Double glazed window to front aspect, radiator.

FIRST FLOOR

GALLERIED LANDING

Exposed ceiling beam, access to boarded roof space with power and light.

BEDROOM (5.18m x 3.21m)

Double glazed window to front aspect and arrow slit windows to the side. Exposed roof beams, uplighters, extensive range of built in wardrobes and drawer storage (in part excluded from measurements).

EN SUITE SHOWER ROOM

Double glazed window to rear aspect. Fully tiled walls and floor, heated towel rail. White suite with chrome finished fittings comprising wc, wash basin with mixer tap set in vanity unit with cupboard and drawer storage, shower enclosure with Mira sports shower.

BEDROOM (5.15m x 3.71m reducing to 2.69m)

Double glazed window to front aspect and arrow slit window. Radiator. Exposed roof timbers, uplighters.

BATHROOM (2.61m x 2.45m)

Double glazed window to rear aspect. Fully tiled walls and floor, exposed timbers, heated towel rail. White suite with chrome finished fittings comprising wc, wash basin with mixer tap and cupboard beneath, 'P' shaped bath with curved shower screen and thermostatic shower head. Shelved linen cupboard.

OUTSIDE

The property is approached to the front by a right of way which leads to double electric gates which are remote controlled and provide access to the curtilage of the barn.

PARKING

There is a gravelled parking area for a number of vehicles within the front garden.

FRONT GARDEN (approximately 18m x 13m overall)

This is a level and secluded garden, laid to lawn with gravel. To one side lies a decked terrace with a bar ideal for outdoor entertaining in the summer months with power and light and an external electric sun blind. Outside tap. A gravelled side access leads to the rear garden.

REAR GARDEN (approximately 12m x 8.5m)

Level and enclosed providing a paved patio terrace, lawn and sleeper edged gravelled borders with shrubs and bushes. There is a concealed oil storage tank. Immediately to the rear of the property is a timber pergola. A hot tub is available by separate negotiation. A plastic storage unit is included. Outside power is provided.

ADDITIONAL INFORMATION

Local Authority - Bath & North East Somerset Council.
The property has mains electricity. The water whilst a main supply comes from Avon Valley Country Park and is metered. We are advised the most recent charge equated to approximately £22 per month. There is no gas. The heating is oil fired. We understand the property has a shared private drainage system which has been renewed in recent years.

COUNCIL TAX

According to the Valuation Office Agency website, cti.voa.gov.uk the present Council Tax Band for the property is B. Please note that change of ownership is a ‘relevant transaction’ that can lead to the review of the existing council tax banding assessment.

TENURE

Freehold.

  • Character features including ledged and braced internal doors, arrow slit windows and exposed beams
  • Well presented versatile accommodation extending to circa 1800 sqft with generous room sizes
  • Entrance hall
  • Living room and dining room
  • Well appointed kitchen/breakfast room
  • Utility room & downstairs cloak/wc
  • Internal study
  • 3 bedrooms (one on the ground floor), Main bedroom with en suite shower room.
  • Family bathroom
  • Pleasant secluded garden with electric gates & gravelled driveway
Floorplan for Avon Valley Farm, Keynsham, Bristol
EPC Graph for Avon Valley Farm, Keynsham, Bristol
Similar Properties

Get an instant online valuation

Find out how much your property is worth