Crocombe, Timsbury, Bath

Sold Subject to Contract £425,000

3 1 1
Crocombe House is an attractive double fronted detached cottage the original part of which is constructed in stone with a tiled pitched roof and an attractive open tiled covered portico to the front elevation, a double glazed conservatory to the side, and a later extension at the rear. The property is gable end on to Crocombe which provides a good degree of privacy and it stands within a level walled plot extending in total to approximately 0.12 acres. Approached from Crocombe through double wooden gates is an extensive driveway, parking and turning area with a detached garage to one side. The configuration of the garden and grounds providing ample scope to extend the existing the property or to build further garaging and/or annexe accommodation, subject to necessary consents.

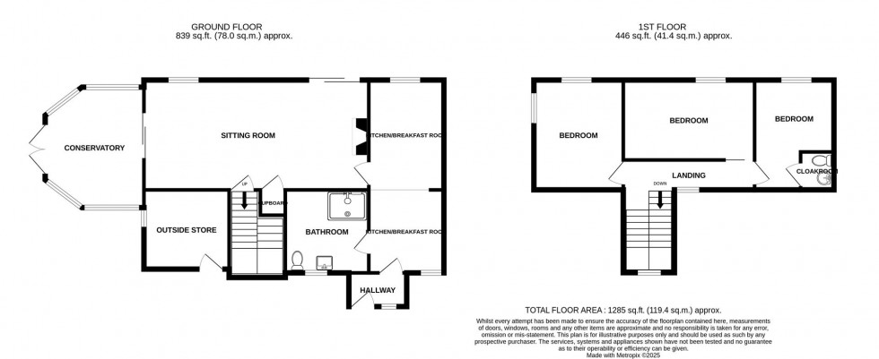
On the ground floor the cottage has a good size living room with a feature fireplace with a wood burning stove, a kitchen/dining room, double glazed conservatory and wet room while on the first floor there are three bedrooms one of which has an en suite cloakroom.

Crocombe lies in the heart of the popular village of Timsbury which is some 5 miles south of the Georgian City of Bath with its renowned range of cultural and educational facilities. The village itself has a good range of local amenities including a general stores, chemist, outstanding primary school, church, doctors surgery and public house and for those wishing to commute to the cities of Bristol and Bath there is good road access. The village is surrounded by open countryside with very pleasant walks available from the door step.

In all, a property full of potential. Early viewing is highly recommended.

In fuller detail the accommodation comprises (all measurements are approximate):

GROUND FLOOR

Double glazed entrance door to

LOBBY/HALL

Double glazed window, tiled floor, multi pane door to

KITCHEN/DINING ROOM (6.53m x 2.69m reducing to 2.55m)

Double glazed windows to front and rear aspects, tiled floor, panelled ceiling and part panelled lower walls. The kitchen is furnished with a range of oak fronted wall and floor units providing drawer and cupboard storage space with rolled edged work surfaces and tiled surrounds. Inset one and a quarter bowl sink unit, inset hob with concealed extractor above and eye level double oven. Integrated refrigerator and dishwasher, plumbing for washing machine. Cupboard concealing Baxi gas fired combination boiler. Radiator.

LIVING ROOM (7.52m x 3.70m)

Feature fireplace with stone surround and wood burning stove, sliding double glazed patio door to front aspect and further double glazed window. Door to deep understairs cupboard, panelled lower walls, radiator, sliding double glazed patio door to

CONSERVATORY (4.12m x 3.32m)

uPVC framed and double glazed. The conservatory has a tiled floor and open top light windows, polycarbonate roof and french doors leading to the outside.

WET ROOM (2.20m x 2.14m)

Double glazed window. White suite with chrome finished fittings comprising wc, wash basin set in vanity unit with cupboard beneath. Floor drain and shower area with thermostatic shower head. Tiled and panelled surrounds, radiator.

FIRST FLOOR

LANDING

Double glazed window at half landing level and double glazed window on the landing, radiator.

BEDROOM (3.66m x 2.98m)

Double glazed windows to front and side aspects, radiator.

BEDROOM (4.35m x 2.69m)

Double glazed window to front aspect, radiator.

BEDROOM (3.68m x 2.57m)

Double glazed window to front aspect, radiator. Access to roof space.

EN SUITE CLOAKROOM (included in measurements)

Wet walling, wc and wash basin with mixer tap, extractor fan, radiator.

OUTSIDE

GARDEN AND GROUNDS

The property is approached from Crocombe through double timber gates to an extensive driveway, parking and hard standing area, ideal for a caravan, boat, vans etc and with ample scope to construct further garaging and/or annexe accommodation subject to necessary consents. The overall plot approximately 25m x 18.5m. The gardens surround the property on 3 sides. To the front the garden is laid to pavings and gravel beds with raised beds and a stone wall boundary to Crocombe. The main area of garden is laid to lawn with stone edge shrub borders and rose beds.

SHED (2.85m x 2.70m)

Attached at the rear of the property with power and light connected and window.

DETACHED GARAGE (5.40m x 3.45m)

Accessed directly from Crocombe with an up and over door, power and light connected, double glazed side door to the driveway.

TENURE

Freehold

COUNCIL TAX

According to the Valuation Office Agency website, cti.voa.gov.uk the present Council Tax Band for the property is D. Please note that change of ownership is a ‘relevant transaction’ that can lead to the review of the existing council tax banding assessment

ADDITIONAL INFORMATION

All mains services are available and connected.

Local Authority : Bath and North East Somerset Council.

  • Huge potential for extension and improvement
  • Available for sale with no upward sales chain following nearly 60 years in the current ownership
  • Large living room with wood burning stove
  • Double glazed conservatory
  • Kitchen/dining room
  • Wet room
  • 3 Bedrooms (one with en suite cloakroom)
  • Good size walled level plot extending to approximately 0.12 acres
  • Detached garage
  • Potential for construction of a detached double garage and/or annexe accommodation (subject to necessary consents)
Floorplan for Crocombe, Timsbury, Bath
EPC Graph for Crocombe, Timsbury, Bath
Similar Properties

Get an instant online valuation

Find out how much your property is worth