St. Annes Avenue, Keynsham, Bristol

Sold Subject to Contract £350,000

3 1 1
A modern, contemporary three bedroom terraced home enjoying a convenient location in close proximity to several popular schools and town centre amenities that would make an excellent first time purchase.

Internally, the ground floor offers an entrance hallway, a generous lounge, and a full-width, fully fitted kitchen/dining room with direct access to the rear garden. To the first floor, three good-sized bedrooms are found (all benefiting from built-in storage), as well as a luxury four-piece suite family bathroom.

Externally, the front of the property has been laid to hardstanding, accessed via a dropped kerb, and provides adequate off-street parking, while the rear has been landscaped with ease of maintenance in mind. It is mainly laid to level lawn and benefits from a patio area, ideal for entertaining.

INTERIOR

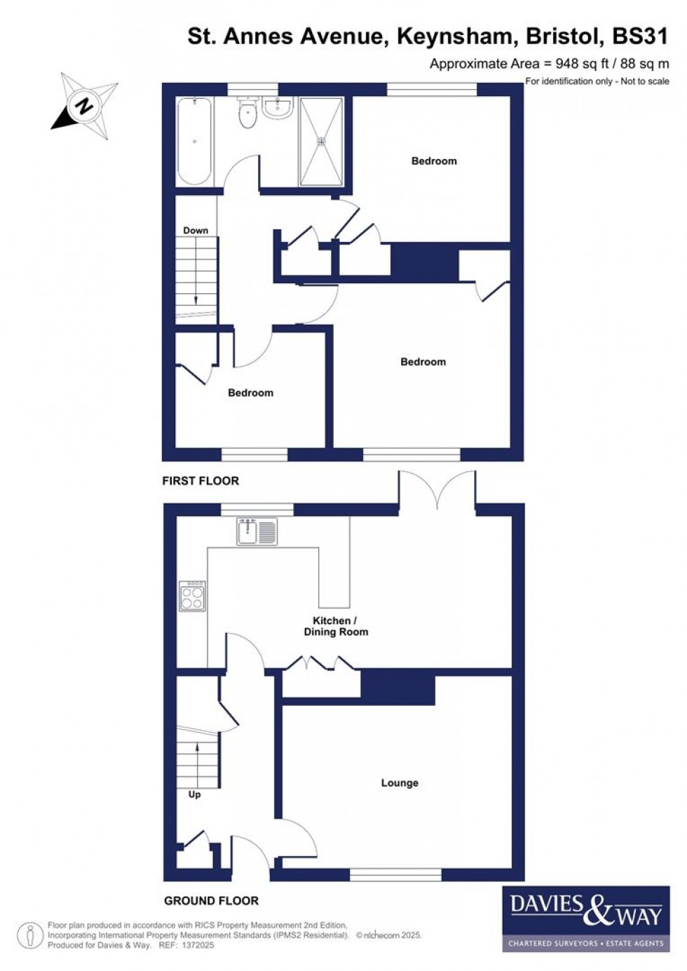
GROUND FLOOR

ENTRANCE HALLWAY (3.8m x 1.9m)

Understairs storage cupboard, radiator, power points, stairs rising to first floor landing, doors leading to rooms.

LOUNGE (4.0m x 3.7m)

Double glazed window to front aspect, radiator, power points.

KITCHEN/DINING ROOM (6.5m x 3.1m)

Double glazed window to rear aspect overlooking rear garden, double glazed French doors to rear aspect overlooking and providing access to rear garden. Modern kitchen comprising range of matching wall and base units with roll top work surfaces, bowl and a quarter sink with mixer tap over, integrated double electric oven with four ring electric hob and extractor fan over, integrated fridge/freezer, washing machine and dishwasher. Inset breakfast bar, power points, splashbacks to all wet area. Dining area benefitting from a radiator, power points and ample space for family sized dining table.

FIRST FLOOR

LANDING (2.6m x 2.4m)

Access to loft via hatch, built in storage cupboard, power points, doors leading to rooms.

BEDROOM ONE (3.4m x 3.3m)

Double glazed window to front aspect, built in wardrobe, radiator, power points.

BEDROOM TWO (3.1m x 2.9m)

Double glazed window to rear aspect overlooking rear garden, built in wardrobe, radiator, power points.

BEDROOM THREE (3m x 2.3m (this measurement includes bulkhead))

Double glazed window to front aspect, built in wardrobe, radiator, power points.

BATHROOM (3.3m x 1.9m)

Four piece suite comprising wash hand basin with waterfall mixer tap over, low level WC, panelled spa bath with waterfall mixer tap over and oversized walk in shower cubicle with dual head shower off mainssupply over.

EXTERIOR

FRONT OF PROPERTY

Low maintenance front garden mainly laid to hardstanding that's accessed via a dropped kerb and provides off street parking, path leading to front door. Path to rear garden.

REAR GARDEN

Low maintenance rear garden mainly laid to lawn with fenced boundaries, patio directly accessed from kitchen/dining room ideal for al fresco dining.

TENURE

This property is freehold

COUNCIL TAX

Prospective purchasers are to be aware that this property is in council tax band B according to www.gov.uk website.

ADDITIONAL INFORMATION

There are historic covenants on the property.

Local authority: Bath and North East somerset.
Services: All services connected.
Broadband speed: Ultrafast 1800mbps (Source - Ofcom).
Mobile phone signal: outside O2, EE and Vodafone - all likely available (Source - Ofcom).

  • Entrance hallway
  • Lounge
  • Kitchen/Dining room
  • Landing
  • Three Bedrooms
  • Bathroom
  • Off street parking
  • Garden
  • No onward sales chain
Floorplan for St. Annes Avenue, Keynsham, Bristol
EPC Graph for St. Annes Avenue, Keynsham, Bristol
Similar Properties

Get an instant online valuation

Find out how much your property is worth