Broad Lane, Coalpit Heath, Bristol

Sold Subject to Contract £625,000

3 2
A charming semi-detached cottage located in Coalpit Heath, 1 Railway Cottage exudes period character with a modern cutting edge. With generous accommodation spread over two floors and beautiful views across surrounding countryside, this is a rare opportunity for those seeking a home steeped in local heritage.

The property offers flexible living space, comprising a charming reception room with a brick fireplace and a wood burner. This leads to an impressive kitchen and dining area which has a roof lantern and glass doors leading out to the garden. The first floor offers three bedrooms, the master benefiting from an ensuite and a further family shower room.

The cottage sits on a very generous plot with garden to the rear circa 0.50 acres offering privacy and scenic views over the garden and orchard with further views towards fields and hills in the distance. To the front, is off street parking and a garage.

One of the standout attributes is the elevated aspect and views over the countryside, giving a sense of tranquillity and connection to the rural setting. The cottage backs onto open land or fields, giving a semi-rural feel despite being close to Bristol.

Opposite the cottage lies the Ram Hill Colliery, a historic 19th-century coal mine site of local interest.
This adds a unique sense of place and history to the property.

Coalpit heath offers a delightful location but also access to Bristol with the A4174 link road giving wider access to further afield.

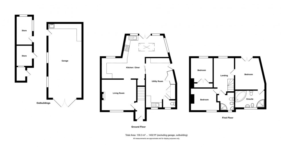
ENTRANCE HALL

A characterful entry via a uPVC door into the property with block stone flooring. Double glazed window to the side lets light flood in. Staircase leads to the first floor.

SITTING ROOM (4.30 x 3.82)

Double glazed window with a front aspect. Character full height brick fireplace with a wood burner inset. Picture rails. Radiator.

KITCHEN DINING ROOM (5.30 x 5.28 narrow in parts)

The kitchen truly is the heart of this home and it does not disappoint. A striking space, featuring high-gloss black wall and base units paired with flexible storage solutions of cupboards and drawers, all complemented by generous worktop space. The sleek, modern feel continues with stylish subway-tiled splashbacks and easy-care tiled flooring that flows seamlessly throughout the room.

Designed with both practicality and lifestyle in mind, there are dedicated spaces for a range-style cooker with extractor above, an American-style fridge freezer, and a dishwasher. Just to the side, a well-positioned dining area provides the perfect spot for family meals or entertaining friends.

Flooded with natural light from four double-glazed windows, a stunning roof lantern, and French doors opening to the garden, the entire room feels wonderfully bright and inviting.

UTILITY ROOM (6.14 x 3.02)

A very generous space with cream fronted base units and wood effect worktops with an inset sink. Spaces are provided for a washing machine and tumble dryer. Matching floor tiles flow in from the kitchen diner. Large built in cupboards, one of which houses the combi boiler. There is a modern sliding door to the kitchen and a further door leads out to the garden with double glazed windows to the front and rear.

CLOAKROOM (10.57 x 0.87)

Double glazed window. Vanity sink with a tile backsplash and a toilet. Heated towel rail.

FIRST FLOOR

LANDING (3.69 x 2.55)

A generous size landing. Double glazed window with a rear aspect offering outstanding views to the garden and beyond. Loft access. Coved ceiling. Radiator.

BEDROOM 1 (3.68 x 2.03)

Double glazed French doors afford amazing views. Ceiling spot lights. Radiator.

ENSUITE (3.68 x 2.03)

Double glazed frosted window. White bathroom suite consisting jacuzzi bath, separate shower, vanity basin, bidet and toilet. The walls are part tiled and there is a heated towel rail. Ceiling spot lights.

BEDROOM 2 (3.00 x 2.69)

Double glazed window with a rear aspect. Built in wardrobes, Radiator. Coved ceiling.

BEDROOM 3 (3.26 x max x 2.72)

Double glazed window with a front aspect. Radiator.

SHOWER ROOM

Double glazed window with a front aspect. Suite comprises a shower cubicle, wash hand basin, bidet and a toilet. Part tiled walls and a heated towel rail. Wall mirror.

OUTSIDE

GARAGE

An impressive detached garage which is located to the front of the property and has access from Broad Lane. It benefits from power and light and could easily be a workshop. The main doors to the front offer access for a vehicle and there is a pedestrian side door and two windows.

FRONT

Fencing to the front and a hedge between the neighbours garden. There is also a small grassed area with the majority of the front set up for off street parking and is accessed via five bar gates with a matching pedestrian gate.

REAR

The first section, immediately behind the house, extends to approximately 43 metres (143 ft). It offers a private outdoor seating area, perfect for alfresco dining, surrounded by mature plants and shrubs. Beyond this, the garden opens up into a generous lawn with a pathway leading down towards the far end. A fence with a gate then provides access to the second part of the garden.

This impressive second section measures around 78 metres (250 ft) in length and 27 metres (89 ft) at its widest point, tapering towards the end. In total, the gardens extend to approximately 0.50 acres. The lower garden is mainly laid to lawn and features a wildlife pond and an orchard at the far boundary, creating a wonderful natural retreat.

There are also two outbuildings: one located in the lower garden, and another in the upper section, which is currently utilised as a dog grooming business.

TENURE

Freehold

COUNCIL TAX

According to the Valuation Office Agency website, cti.voa.gov.uk the present Council Tax Band for the property is D. Please note that change of ownership is a ‘relevant transaction’ that can lead to the review of the existing council tax banding assessment.

ADDITIONAL INFORMATION

Local authority. South Gloucestershire
Broadband speed. Ultrafast 1000mps
Mobile signal. EE O2 Three Vodaphone. Good outdoor signal source Ofcom
Services. Mains water and electric. Private sewerage. LPG gas central heating
property is with in a coal mining reporting area

  • Beautiful semi rural location
  • Outstanding garden with fantastic views
  • Outbuildings
  • Separate detached garage
  • Extensive open plan kitchen dining space
  • Separate large utility room
  • Patio with wonderful views
  • Ensuite bathroom
  • Tucked away location
  • Large garden with an orchard circa 0.50 acre
Floorplan for Broad Lane, Coalpit Heath, Bristol
EPC Graph for Broad Lane, Coalpit Heath, Bristol

Get an instant online valuation

Find out how much your property is worth