Windrush Road, Keynsham

Sold Subject to Contract £395,000

3 1 2
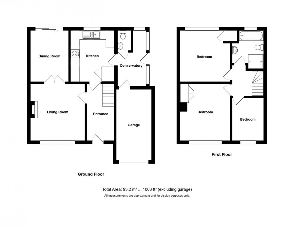
This traditional Knox built semi detached house is of an ever popular design dating from the very end of the 1950's. It has been in the same ownership since new and has been well cared for, now available with no upward sales chain. It has double glazed windows and doors and gas fired central heating and is ready for a new owner to undertake updating and extension (if required) to suit their own requirements. The existing accommodation is well proportioned with an entrance hall, two reception rooms, kitchen, side porch/utility and cloakroom with WC on the ground floor and three bedrooms and bathroom on the first floor.

Externally the property has a mature front garden, driveway parking and an attached garage. A particularly good size south facing rear garden has a good degree of maturity and offers great scope for a keen gardener.

Windrush Road is a popular location on the Wellsway side of Keynsham within walking distance of the Wellsway School Complex and neighbourhood shops on Chandag Road which includes a Morrisons Daily and a pharmacy. The Town Centre with it's excellent range of day to day amenities is approximately 1 mile away with a shorter walking route via Dapps Hill and Memorial Park. Waitrose food store at Broadmead Lane is under a mile away.

In all, an excellent opportunity presents itself to acquire an ideal family home to place your own stamp on.

In fuller detail the accommodation comprises (all measurement are approximate):

GROUND FLOOR

OPEN CANOPIED PORCH

Double glazed entrance door and side panel to

ENTRANCE HALL

Staircase to first floor with cupboard beneath. Radiator.

SITTING ROOM (3.85m x 3.68m)

Double glazed window to front aspect. Fireplace with electric fire. Radiator. Glazed double doors to

DINING ROOM (3.43m x 2.60m)

Wood flooring, sliding double glazed patio door to rear garden. Radiator. Servery to kitchen.

KITCHEN (3.42m x 2.95m)

Tiled floor, radiator. Double glazed window overlooking the rear garden. Shelved pantry (included in measurements). Extensive range of oak fronted wall and floor units providing drawer and cupboard storage space with contrasting work surfaces and tiled surrounds. Inset one and quarter bowl stainless steel sink. Built in double oven, hob and hood. Plumbing for washing machine. Double glazed door to

UTILITY/SIDE PORCH (3.93m x 1.90m)

uPVC framed and double glazed. Tiled floor, electric panel heater. Door to garage and double glazed door to outside.

CLOAK/WC (Included in porch measurements)

Double glazed window to rear aspect, tiled floor and extensively tiled walls. WC and wash basin with cupboard beneath. Cupboard containing Potterton gas fired boiler.

FIRST FLOOR

LANDING

Access to roof space with drop down ladder. Double glazed window to side aspect.

BEDROOM ONE (3.93m x 3.43m)

Double glazed window to front aspect. Radiator. Built in shelved cupboard (included in measurements).

BEDOROM TWO (3.42m x 3.41m)

Double glazed window overlooking the rear garden. Shelved airing cupboard with hot water cylinder (included in measurements).

BEDROOM THREE (2.90m x 2.19m)

Double glazed window to front aspect, radiator.

BATHROOM (2.60m x 2.14m (max))

Double glazed window to rear aspect. Tiled floor and fully tiled walls, ceiling mounted downlighters. Heated towel rail. White suite comprising bath with mixer tap and hand held shower fitment, WC and wash basin with mixer tap set in vanity unit with cupboard beneath. Separate fully tiled shower enclosure with Triton independent electric shower head.

OUTSIDE

FRONT

Stone walled boundary to Windrush Road with garden laid to lawn with surrounding flower and shrub borders.

A concrete driveway provides off street parking and the approach to the

ATTACHED GARAGE (4.78m x 2.36m)

Electric remote controlled roller entrance door. Power and light connected. Connecting internal door to side porch.

REAR GARDEN (21.5m x 9m)

Southerly facing, approached via a side access from the front of the property. The garden comprises a paved patio terrace immediately to the rear, beyond which it is laid to lawn with flower and shrub borders. An outside tap is provided and there is a timber shed at the far end of the garden.

TENURE

Understood to be freehold. The title is unregistered.

ADDITIONAL INFORMATION

All mains services. Local Authority - Bath & North East Somerset Council.

COUNCIL TAX

According to the Valuation Office Agency website, cti.voa.gov.uk the present Council Tax Band for the property is D. Please note that change of ownership is a ‘relevant transaction’ that can lead to the review of the existing council tax banding assessment.

  • Owned since new and well cared for with scope for updating
  • Scope to extend (subject to necessary consents)
  • Entrance hall
  • Living room with double doors to dining room
  • Kitchen
  • Side porch/utility and downstairs cloak/WC
  • 3 Bedrooms
  • Bathroom
  • Driveway and attached garage with electric roller entrance door
  • Good size south facing rear garden
Floorplan for Windrush Road, Keynsham
EPC Graph for Windrush Road, Keynsham
Similar Properties

Get an instant online valuation

Find out how much your property is worth