Temple Street, Keynsham, Bristol

For Sale £350,000

2 1 1
Occupying the top floor of a purpose built development, this impressive two double bedroom penthouse apartment combines spacious living with convenience, situated just moments from Keynsham High Street.

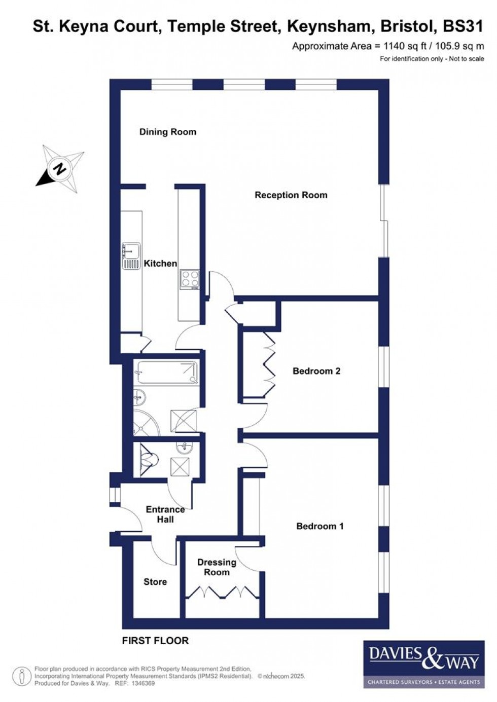
The building is accessed via a secure telephone entry system, opening into a communal hallway with both lift and stair access to the upper floors. Stepping inside the apartment, a bright and welcoming entrance hall, illuminated by a skylight, leads to the well planned accommodation. The generous lounge/dining room enjoys an abundance of natural light and features sliding doors that open onto a private wrap around terrace, boasting far reaching views over the surrounding countryside, Kelston Round Hill, and Keynsham town. A modern fitted kitchen, two double bedrooms (including a principal suite with its own dressing room), a family bathroom, and a separate WC complete the interior.

Additional advantages include no onward chain and a designated parking space located within the underground communal garage.

INTERIOR

GROUND FLOOR

COMMUNAL ENTRANCE HALLWAY

Accessed via secure telephone entry system with lift and stair access leading to other floors.

TOP FLOOR

INTERNAL HALLWAY

Sky light window, doors leading to internal rooms, storage cupboards, electric heaters and power points.

LOUNGE/DINING ROOM (7.2m x 5.7m)

to maximum points. Double glazed sliding door and windows to terrace, open archway to kitchen, electric heaters and power points.

KITCHEN (4.6m x 2.2m)

Open archway to reception room, matching wall and base units with laminate wood effect work surfaces over and tiled splashbacks to area. Spaces for white goods and plumbing for washing machine.

BEDROOM ONE (5m x 3.7m)

Double glazed windows to front aspect and a door leading to dressing room. Fitted dressing table with wall mounted mirror, electric heater and power points.

DRESSING ROOM (2.1m x 2m)

Built in wardrobes and power points.

BEDROOM TWO (3.8m x 3.7m)

Double glazed window to front aspect, fitted wardrobes, electric heater and power points.

BATHROOM (2.1m x 1.8m)

Sky light window, fully tiled walls, walk in corner electric shower cubicle, panelled bath with taps and shower head attachment over, and a vanity unit with storage cupboard and wash hand basin with hot and cold taps.

CLOAKROOM (1.3m x 1m)

Sky light window, wash hand basin with hot and cold taps with tiled splashback to area and a wall mounted mirror. Low level WC with hidden cistern and a fitted shelving cupboard.

EXTERIOR

TERRACE

Laid to patio boasting breath taking views over Keynsham town, countryside and Kelston round hill.

TENURE

This property is leasehold. The Lease is for 122 years from April 2017 with approximately 114 years remaining. An annual service charge of £1434 is payable plus £175 per year ground rent.

COUNCIL TAX

Prospective purchasers are to be aware that this property is in council tax band B according to www.gov.uk website. Please note that change of ownership is a ‘relevant transaction’ that can lead to the review of the existing council tax banding assessment.

ADDITIONAL INFORMATION

Local authority: Bath and North East somerset.
Services: All services connected.
Broadband speed: Ultrafast 1800mbps (Source - Ofcom).
Mobile phone signal: outside EE O2, Three, Vodafone - all likely available (Source - Ofcom).

  • Top floor apartment
  • Lounge/dining room
  • Kitchen
  • Two double bedrooms
  • Dressing room
  • Bathroom
  • Terrace
  • Breath-taking views
  • Town centre location
  • No onward chain
Floorplan for Temple Street, Keynsham, Bristol
EPC Graph for Temple Street, Keynsham, Bristol
Similar Properties

Get an instant online valuation

Find out how much your property is worth