Naishcombe Hill, Wick, Bristol

For Sale £850,000

4 3 3
Set back from Naishcombe Hill, this impressive home is approached via double electric gates which open onto a private driveway providing parking for several vehicles, access to the garage with electric roller door, and a useful wooden office space.

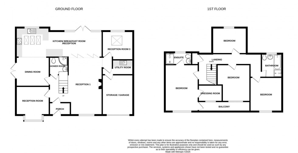
Upon entering the property, the front door opens into an entrance porch leading to the ground floor accommodation. The layout has been thoughtfully designed to create superb open-plan family living.

To the left of the staircase, there is a convenient shower/cloakroom. Also to the left, a cosy snug with square bay window and log-burning stove, ideal for relaxing in the evenings. To the right of the staircase is the first reception room, which flows seamlessly into the open-plan kitchen, living and dining area. This light-filled space enjoys natural light from the front to the rear of the property.

The kitchen has been fitted with a stylish range of wall and floor units, featuring a pull-out larder, built-in Neff double oven, induction hob, and integral dishwasher. French doors from the dining area open out to a pretty side garden.

From the second reception room, a lobby leads to a third reception room, currently set up as an office but equally suitable as a fifth bedroom. Completing the ground floor is a practical utility room with access to the integral garage.

On the first floor, there are four double bedrooms and a family bathroom. The master suite boasts an en-suite shower room, walk-in wardrobe, and a private balcony enjoying far-reaching views of the surrounding countryside.

Externally, the secure gated driveway provides parking for four or five cars. The rear garden is private and secluded, complemented by outbuildings including a gym with power and lighting, as well as a wooden workshop/office.

ENTRANCE PORCH (1,88m x 1.80m)

To maximum points. Stain glass window overlooking snug to side aspect, door providing access to accommodation.

RECEPTION ONE (5.31 x 4.65m)

to maximum points. Oak staircase providing access to first floor landing, doors providing access to accommodation, UPVC double glazed window to front aspect, bi fold doors provide access to Reception Two, opening providing access to lobby, log burning stove with stone surround and hearth, underfloor heating, power points.

KITCHEN/DINER AND FURTHER LIVING ACCOMMODATION (8.88m x 6.38m narrowing to 2.81m)

to maximum points. UPVC double glazed window to rear aspect, UPVC double glazed double doors providing access to rear garden to rear aspect, Velux windows, double doors, UPVC double glazed double doors providing access to side of property, L-shaped kitchen comprising matching wall and base units with solid oak work surfaces, pantry cupboard, integral Neff electric oven with integral Neff grill, induction hob with extractor fan over, integral dishwasher, bowl and a quarter sink with mixer tap over, breakfast bar, integral bins, tiled splashbacks to all wet areas, power points. ample space for family sized dining table, underfloor heating.

RECEPTION ROOM (4.68m x 3.72m)

to maximum points. Please note these measurements include into bay windows. UPVC double glazed bay window to front aspect, log burning stove with stone hearth, underfloor heating.

LOBBY

Access to reception three and utility room.

RECEPTION THREE (3.56m x 3.01m)

to maximum points. UPVC double glazed window to rear aspect, Velux window, currently being used as an office but could be a further bedroom, underfloor heating, power points.

UTILITY ROOM (3.24m x 1.30m)

to maximum points. Utility room comprising matching wall and base units with roll top work surfaces bowl and a quarter stainless steel sink with mixer tap over, space and plumbing for washing machine, space for tumble dryer, radiator, door providing access to garage.

GARAGE (3.6m x 3.4m)

to maximum points. Access via an electric roller door benefiting power and lighting, currently utilised as storage, wall mounted gas boiler. Please note the garage is not of a full size.

DOWNSTAIRS SHOWER ROOM (1.71m x 1.64m)

to maximum points. Shower room comprising low level WC, corner shower cubicle with shower off main supply, vanity unit wash hand basin with mixer tap over, fully tiled, underfloor heating. Ceiling spot lights.

FIRST FLOOR

LANDING (6.35m x 3.03m narrowing to 0.75m)

Split staircase. UPVC double glazed window to rear aspect, doors providing access to accommodation, built-in storage cupboard housing hot water cylinder.

BEDROOM ONE (4.56m x 3.40m)

to maximum points. UPVC double glazed window to front aspect, UPVC double glazed door providing access to balcony to side aspect, door providing access to walk-in wardrobe, door providing access to en-suite shower room.

EN SUITE SHOWER ROOM (2,7m x 1.69m)

to maximum points. Obscured UPVC double glazed window to rear aspect, shower room comprising matching three piece suite comprising hidden cistern WC, vanity unit wash hand basin, larger than typical double shower with waterfall shower head off main supply, fully tiled, heated towel rail.

WALK-IN WARDROBE (2m x 1.78m)

to maximum points. UPVC double glazed window to front aspect, an array of fitted wardrobes providing walk-in wardrobe.

BEDROOM TWO (3.47m x 3.38m)

to maximum points. UPVC double glazed window to front aspect, radiator, power points.

BEDROOM THREE (3.88m x 3.40m)

to maximum points. Access to loft via hatch. UPVC double glazed window to front aspect, radiator, power points.

BEDROOM FOUR (3.65m x 2.63m)

to maximum points. UPVC double glazed window overlooking rear garden to rear aspect, radiator, power points.

FAMILY BATHROOM (2.77m x 2.39m)

to maximum points. Obscured UPVC double glazed window to rear aspect, bathroom comprising low level WC, vanity unit and wash hand basin with mixer tap over, panelled bath with shower attachment and mixer tap over, shower cubicle with shower off mains supply, heated towel rail, tiled splashbacks to all wet areas.

EXTERIOR

FRONT OF PROPERTY

Mainly laid to block paving and stone chippings, hedged boundaries and private access to electric gates.

REAR OF PROPERTY

Mainly laid to lawn and composite decking with pathway providing access to exterior.

GYM

Benefiting power and lighting. Outside is a 8 person coast spa.

SIDE OF PROPERTY

Exterior wooden built workshop currently utilised as an office.

TENURE

Freehold

COUNCIL TAX

According to the Valuation Office Agency website, cti.voa.gov.uk the present Council Tax Band for the property is F. Please note that change of ownership is a ‘relevant transaction’ that can lead to the review of the existing council tax banding assessment.

ADDITIONAL INFOMATION

Local authority. South Gloucestershire
Broadband. Superfast 80 mps source Ofcom
Mobile phone. O2 EE Three Vodafone. Good outdoor signal. Source Ofcom
Property is located with in a coal mining reporting area

  • Open plan kitchen diner / living space
  • Separate snug
  • Office / further reception room
  • Outbuilding currently a gym
  • Master bedroom with a balcony and delightful views
  • Three bathrooms / shower rooms
  • Four double bedrooms
  • Extensive parking to the front behind an electric gate
  • Enclosed rear garden
  • Some lovely rural views
Floorplan for Naishcombe Hill, Wick, Bristol
EPC Graph for Naishcombe Hill, Wick, Bristol
Similar Properties

Get an instant online valuation

Find out how much your property is worth