High Street, Keynsham, Bristol

For Sale £240,000

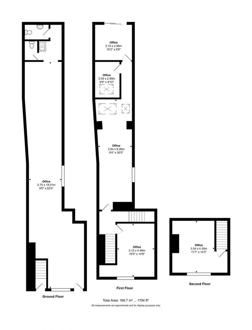
The Ground floor has a gross floor area of 59.7m2 (642 sq ft) with tea point and toilet.

The First floor comprises 4 separate spaces as below:

2.05m x 2.99m (6' 9'' x 9' 10'') (66 sq ft)
2.84m x 9.26m (9' 4'' x 30' 5'') (282 sq ft)
3.12m x 4.46m (10' 3'' x 14' 8'') (Floor area 150 sq ft)

Second Floor

3.54m x 4.35m (14' 3'' x 11' 7'') (Floor area 166 sq ft)

Tenure

Freehold

Services

All mains are connected and there is a Vaillant gas fired boiler which runs the heating.

Outgoings

Rateable Value £9,700

Viewing

All viewings to be arranged via the Agent

Planning

The last use was Class E (Office Space)

Local Authority

Bath & North East Somerset Council
Floorplan for High Street, Keynsham, Bristol
Similar Property

Get an instant online valuation

Find out how much your property is worth