Bath Road, Longwell Green, Bristol

Sold Subject to Contract £650,000

4 1 4
A handsome, Grade II listed four double bedroom landmark home that sits within substantial grounds within the heart of Longwell Green. Believed to be one of the original homes in the area, this unique home offers characterful accommodation that is ripe for a new owner to add their mark and enhance. The home sits within generous grounds that are enclosed by a stone wall and laid to several gardens that offer a selection of mature shrubs and trees in addition to a two storey detached barn and possible future development (subject to obtaining necessary consents).

Internally the home offers characterful accommodation with every room offering a selection of period features including sash windows, cornicing, ceiling roses, original dressers, dado rails and period fireplaces to name a few. The ground floor comprises of a lengthy entrance hallway which leads to four individual Reception rooms, in addition to a kitchen and lean to utility room. To the first floor, four double bedrooms are found in addition to a family bathroom.

An extremely rare opportunity to acquire a landmark home with a huge amount of potential that is offered with no onward sales chain.

INTERIOR

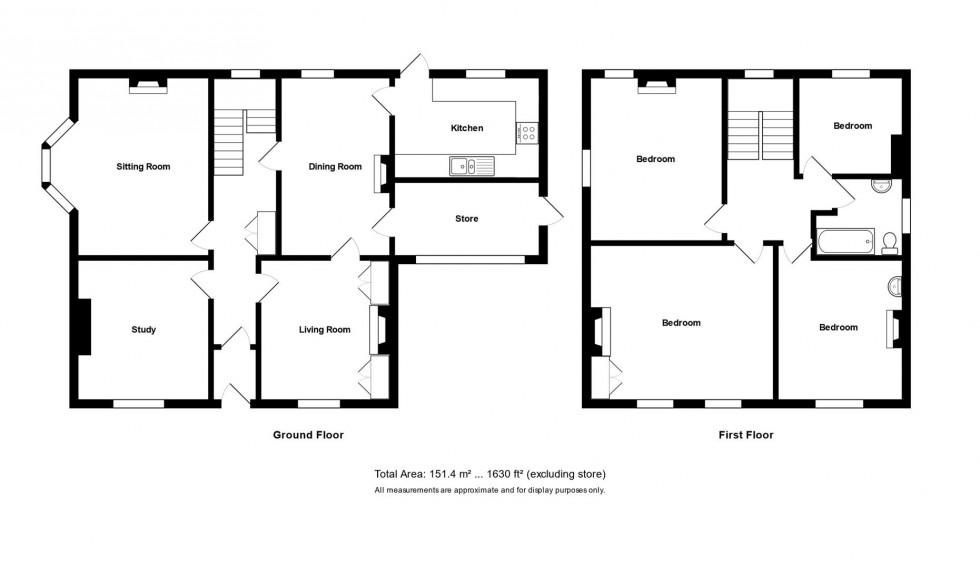
GROUND FLOOR

ENTRANCE VESTIBULE (1.2m x 1.1m)

Original style wall mouldings, glazed door leading to hallway.

HALLWAY (5.6m x 1.7m narrowing to 1.1m)

Built in original style dresser, radiator, understairs storage cupboard, stairs rising to first floor landing, doors leading to rooms.

RECEPTION ONE (5m x 4.8m)

to maximum points into bay. Bay window with original style sash windows to front aspect, original style ceiling rose, cornicing, picture rails and feature open fireplace with marble surround. Radiators, power points.

RECEPTION TWO (3.8m x 3.5m)

Original style sash window with inset wood shutters to side aspects, original style picture rails, radiator, power points.

RECEPTION THREE (3.7m x 3.5m)

Original style sash window with inset wood shutters to front aspect, original style picture rail and storage to chimney recess, feature open fireplace, radiator, power points. Door leading to Reception Four.

RECEPTION FOUR (4.7m x 2.7m)

Sash window to side aspect, feature open fireplace with stone surround, radiator, power points, door leading to kitchen.

KITCHEN (3.8m x 2.7m)

Windows to side aspect, sash window to utility room, kitchen comprising range of matching wall and base units with roll top work surfaces, double sink with mixer tap over, space and electric supply for oven with extractor fan over, integrated fridge/freezer, tiled splashbacks to all wet areas, glazed door to side aspect leading to garden.

LEAN TO UTILITY ROOM (4.2m x 1.9m)

A single skin room with windows to rear and side aspects and door to the rear aspect leading to rear garden. Belfast sink, space and plumbing for washing machine, floor mounted oil boiler.

FIRST FLOOR

LANDING (2.3m x 2m)

Original style sash window to side aspect, access to loft via hatch, doors leading to rooms.

BEDROOM ONE (5.3m x 3.5m)

Dual aspect secondary glazed sash windows to front and side aspects, original style period fireplace, radiator, power points.

BEDROOM TWO (4.8m x 3.9m)

Dual secondary glazed sash windows to side aspect, built in storage cupboards, period style fireplace, radiator, power points, door leading to Bedroom Three.

BEDROOM THREE (3.8m x 3.3m)

Secondary glazed sash window to side aspect, Georgian style fireplace, radiator, power points, wash hand basin, door leading to bedroom four

BEDROOM FOUR (3.1m x 3m)

Secondary glazed sash window to side aspect, radiator, power points.

BATHROOM (2.4m x 2m)

Sash window to rear aspect, matching three piece suite comprising pedestal wash hand basin, low level WC and panelled bath with mixer tap and shower attachment over, radiator, tiled splashbacks to all wet areas.

EXTERIOR

Sat within substantial grounds that are surrounded by a stone wall that provides a great deal of privacy, benefitting from several lawns, a selection of shrubs, trees and well stocked flower beds, as well as a driveway for several vehicles that is accessed via double gates from Watsons Road.

DETACHED BARN

The property further boasts a two storey detached stone barn that offers a huge amount of potential and possibility of further residential accommodation (subject to obtaining necessary consents).

TENURE

This property is freehold.

COUNCIL TAX

Prospective purchasers are to be aware that this property is in council tax band F according to www.gov.uk website. Please note that change of ownership is a ‘relevant transaction’ that can lead to the review of the existing council tax banding assessment.

ADDITIONAL INFORMATION

Local authority: South Gloucestershire
Services: All services connected.
Broadband speed: Ultrafast 1000mbps (Source - Ofcom).
Mobile phone signal: outside EE, O2, Three and Vodafone - all likely available (Source - Ofcom).

  • Grade II Listed
  • Detached
  • Four Reception rooms
  • Kitchen
  • Four double bedrooms
  • Bathroom
  • Substantial grounds
  • Detached two storey barn
  • Development potential
  • Marketed with no onward chain
Floorplan for Bath Road, Longwell Green, Bristol
Similar Properties

Get an instant online valuation

Find out how much your property is worth